
Crozilla.com
Palace Real Estate
+38 ···
Nr. anzeigenPreise & Kosten
Provision für Käufer
Bitte beachte, das Angebot kann bei Vertragsabschluss die Zahlung einer Provision beinhalten. Weitere Informationen erhältst Du vom Anbieter.
Das Haus
Baujahr
2025
Details
Objektbeschreibung
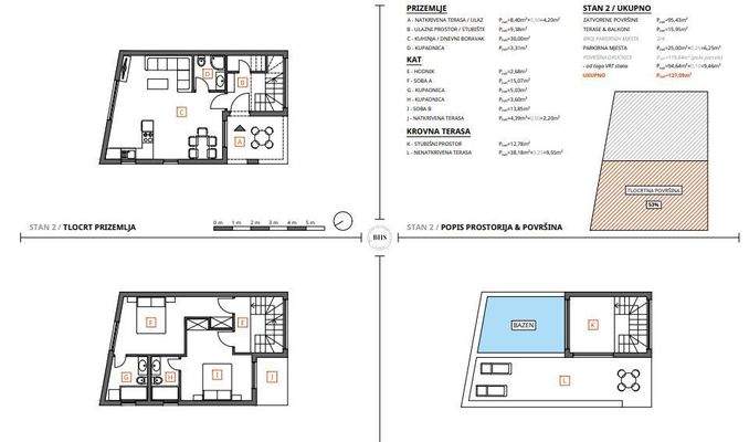
Verkauf von neuen Doppelhaushälften im modernen Design mit einem Pool auf der Dachterrasse.
Hausdetails:
Durch den Prozess der Wohnungsaufteilung wird es als dreistöckige Wohnung behandelt. Gesamtfläche: 127 m2. Hof: 120 m2 (Teil des Grünbereichs und Parkplatz für zwei Autos). Drei Stockwerke, zwei Schlafzimmer...
Weitere Informationen
Stichworte
Anzahl der Schlafzimmer: 2, Anzahl der Badezimmer: 3
Anbieter der Immobilie
Crozilla.com
Nova cesta 60, 10000 ZAGREB
Online-ID: 2nppm56
Referenznummer: 15535333_11
Finde Angebote wie dieses
Hier geht es zu unserem Impressum, den Allgemeinen Geschäftsbedingungen, den Hinweisen zum Datenschutz und nutzungsbasierter Online-Werbung.