
Allkauf Haus GmbH
Herr Roland Dreyer
034 ···
Nr. anzeigenPreise & Kosten
Provision für Käufer
provisionsfrei
Lage
Der Grundstückspreis für das Grundstück ist im Angebot enthalten.
Bitte haben Sie Verständnis, dass wir ohne ein persönliches Gespräch keine Grundstücksdaten weiterleiten.
Ich darf Grundstücksinformationen ausschließlich an Kunden weitergeben.
Sollte Ihnen dieses Grundstück nicht zusagen, sind am Ort und in der...
Das Haus
Kategorie
Mehrfamilienhaus
Baujahr
2026
Bezug
2026
Energie & Heizung
Warum sehe ich diese Anzeige? – Du siehst diese Anzeige basierend auf Ihrer Navigation auf unserer Website und den Suchkriterien, die du verwendet hast.
Weitere Energiedaten
Haustyp
Niedrigenergiehaus
Heizungsart
Fußbodenheizung, Luft-/Wasser-Wärmepumpe
Details
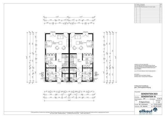
Objektbeschreibung
Willkommen in Ihrem zukünftigen Zweifamilienhaus, das ganz nach Ihren Wünschen und Vorstellungen projektiert wird. Die großzügige Wohnfläche von 254,88 m² verteilt sich auf zwei Etagen und bietet Platz für die ganze Familie. Mit insgesamt 8 Zimmern, darunter 6 Schlafzimmer, 2 Badezimmer sowie ein zusätzliches Gäste-WC, sind...
Ausstattung
- Luft-Wasser-Wärmepumpe
- Ausbaupaket 1
( Haustechnikpaket inkl. Rohrleitungen, Heizungsanlage, Elektropaket, Dämm- und Beplankungspaket.)
- Ausbaupaket 2
(Sanitärobjekte, Fliesen und Fensterbänke, Innentüren inkl. Zargen)
- Bodenplatte im Hauspreis enthalten
- und und und
Weitere Informationen
Sonstiges
Bauen mit allkauf haus bedeutet:
- individuelle und professionelle Beratung
- Mitgestaltung beim Grundriss
- Bauen mit Profis - über 42 Jahre Markterfahrung
- Festpreisgarantie 15 Monate
- kurze Montagezeiten
Stichworte
Anzahl der Schlafzimmer: 6, Anzahl der Badezimmer: 2, 2 Etagen...
Anbieter der Immobilie
Allkauf Haus GmbH
Gletschersteinstr. 53, 04299 Leipzig
Online-ID: 2npwe5b
Referenznummer: ROD-KW50-128423
Finde Angebote wie dieses
Hier geht es zu unserem Impressum, den Allgemeinen Geschäftsbedingungen, den Hinweisen zum Datenschutz und nutzungsbasierter Online-Werbung.