

Immobilien Stöger
Herr Thomas Stöger
086 ···
Nr. anzeigenPreise & Kosten
Provision für Käufer
provisionsfrei
Lage
Das Reihenmittelhaus befindet sich in einer ruhigen und dennoch zentralen Lage von Bad Füssing, einem bekannten Kurort im niederbayerischen Raum. Die Umgebung bietet eine gute Anbindung an öffentliche Verkehrsmittel, Einkaufsmöglichkeiten, Gastronomie sowie verschiedene Freizeitmöglichkeiten. Die nahegelegenen Thermen und das...
Das Haus
Kategorie
Reihenmittelhaus
Baujahr
1983
Derzeitige Nutzung
vermietet
Energie & Heizung
Warum sehe ich diese Anzeige? – Du siehst diese Anzeige basierend auf Ihrer Navigation auf unserer Website und den Suchkriterien, die du verwendet hast.
Energieausweistyp
Verbrauchsausweis
Gebäudetyp
Wohngebäude
Wesentliche Energieträger
Öl
Gültigkeit
28.01.2025 bis 27.01.2035
Effizienzklasse
F
Endenergieverbrauch
197,70 kWh/(m²·a) - Warmwasser enthalten
Weitere Energiedaten
Energieträger
Öl
Heizungsart
Zentralheizung
Details
Objektbeschreibung
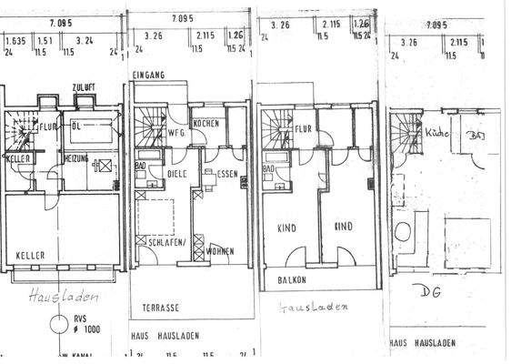
Zum Verkauf steht ein gepflegtes Reihenmittelhaus in zentraler Lage von Bad Füssing. Das im Jahr 1983 erbaute Haus bietet auf einer Wohnfläche von ca. 118 m² und einem Grundstück von 161 m² ausreichend Platz für verschiedene Nutzungsmöglichkeiten. Im Jahr 2011 wurde das Gebäude umfassend renoviert und in fünf separate...
Ausstattung
- Baujahr: 1983
- Wohnfläche: 118 m²
- Grundstücksgröße: 161 m²
- Aufteilung: 5 Apartments mit jeweils eigenem Bad, Küche, Schlafbereich sowie Balkon/Terrasse
- aktuelle Mieteinnahmen: 884 €/Monat kalt
- ab 2026 mietfrei (01.02.26)
- Heizung: Baujahr 2000
- Keller: Ja, geräumig
- Renovierung: Große...
Preisinformation
1 Garagenstellplatz
Weitere Informationen
Stichworte
Garage vorhanden, Anzahl der Schlafzimmer: 3, Anzahl der Badezimmer: 1, Anzahl Balkone: 1, Balkon-Terrassen-Fläche: 10,00 m², Bundesland: Bayern, modernisiert: 2020, Distanz zum Flughafen: 23.14, Distanz zum Hauptbahnhof: 15.49, Distanz zum Bus: 11.97
Anbieter der Immobilie

Online-ID: 2nq7h52
Referenznummer: 4623768
Finde Angebote wie dieses
Hier geht es zu unserem Impressum, den Allgemeinen Geschäftsbedingungen, den Hinweisen zum Datenschutz und nutzungsbasierter Online-Werbung.