
STEINFEGER IMMOBILIEN
060 ···
Nr. anzeigenPreise & Kosten
Provision für Käufer
Bitte beachte, das Angebot kann bei Vertragsabschluss die Zahlung einer Provision beinhalten. Weitere Informationen erhältst Du vom Anbieter.
Lage
Dieses Einfamilienhaus wird im Florstädter Stadtteil Stammheim erbaut. Die Gemeinde Florstadt ist über Busverbindung an Friedberg angeschlossen. Von Friedberg gibt es alle 20 min eine S- Bahn Verbindung nach Frankfurt. Einkaufsmöglichkeiten für den täglichen Bedarf sind am Ort umfangreich verfügbar, ebenso Kindergärten und...
Das Haus
Kategorie
Einfamilienhaus
Baujahr
2026
Energie & Heizung
Warum sehe ich diese Anzeige? – Du siehst diese Anzeige basierend auf Ihrer Navigation auf unserer Website und den Suchkriterien, die du verwendet hast.
Energieausweis: für diesen Gebäudetyp nicht notwendig
Weitere Energiedaten
Haustyp
Massivhaus
Details
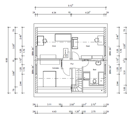
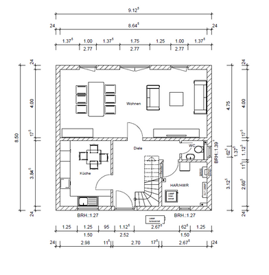
Objektbeschreibung
In ruhiger und attraktiver Lage von Florstadt entsteht ein modernes Einfamilienhaus, das zeitgemäßen Wohnkomfort mit durchdachter Architektur verbindet. Auf einer Grundstücksfläche von ca. 552 m² bietet dieses Haus ideale Voraussetzungen für Familien oder Paare, die Wert auf Großzügigkeit, Flexibilität und Lebensqualität...
Ausstattung
- Bei den Bildern handelt es sich um eine Visualisierung
- 2x Stellplatz für 15.000 €
- Massivbauweise in Porenbeton 24 cm Mauerwerk
- Mehrsparten Hausanschluss
- Röhrenspan Innentüren CPL Oberfläche
- Dreifachverglaste Fensterelemente
- Innenfensterbänke Werzalit
- Treppe mit Buche Stufen
- WC und...
Preisinformation
2 Stellplätze, Kaufpreis je: 7.500,00 EUR
Weitere Informationen
Stichworte
Stellplatz vorhanden, Anzahl der Schlafzimmer: 5, Anzahl der Badezimmer: 1, Anzahl der separaten WCs: 1, Anzahl Terrassen: 1, 2 Etagen
Anbieter der Immobilie
Online-ID: 2nq8b59
Referenznummer: 8469#eaLxYh
Finde Angebote wie dieses
Hier geht es zu unserem Impressum, den Allgemeinen Geschäftsbedingungen, den Hinweisen zum Datenschutz und nutzungsbasierter Online-Werbung.