

tell immobilien e.K.
Herr Franz Stallenberger
+49 ···
Nr. anzeigenPreise & Kosten
Provision für Käufer
provisionsfrei
Lage
Das Grundstück liegt eingebettet in einer Wohnsiedlung in Malgersdorf, erschlossen durch eine ruhige Siedlungsstraße ohne Durchgangsverkehr, mit Wendehammer.
In Malgersdorf befindet sich eine Bäckerei mit EDEKA-Laden und eine Metzgerei, sowie eine Landgaststätte und eine Tankstelle mit "Shop".
Dingolfing, Landau...
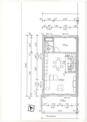
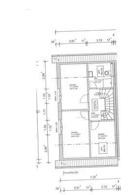
Das Haus
Kategorie
Reihenendhaus
Geschosse
3 Geschosse
Baujahr
2026
Bezug
Ende 2026
Energie & Heizung
Warum sehe ich diese Anzeige? – Du siehst diese Anzeige basierend auf Ihrer Navigation auf unserer Website und den Suchkriterien, die du verwendet hast.
Energieausweistyp
Bedarfsausweis
Gebäudetyp
Wohngebäude
Baujahr laut Energieausweis
2026
Wesentliche Energieträger
Luft/Wasser-Wärmepumpe
Gültigkeit
08.09.2024 bis 07.09.2034
Effizienzklasse
A+
Endenergiebedarf
11,00 kWh/(m²·a)
Weitere Energiedaten
Haustyp
KfW 40, Massivhaus
Energieträger
Elektro
Heizungsart
Fußbodenheizung, Luft-/Wasser-Wärmepumpe
Details
Objektbeschreibung
Sehr geehrte Leserinnen und Leser dieses Exposés,
diese top modernen Reihenhäuser in Massiv-Bauweise werden errichtet im
"Effizienzhaus-40-Standard"/"KNN-55-Standard"
d.h.: Massive, nachhaltige Bauweise mit Ytong-Poroton-Ziegeln (42,5cm-Außenwände)
Einsatz Erneuerbare Energien durch...
Ausstattung
Das Haus:
Reihen-Endhaus in moderner Massiv-Bauweise, Außenwände errichtet mit Ytong-Plansteinen. Außenwände 36,5cm, tragende Innenwände aus Ytong-Mauerwerk mit einer Stärke von 17,5cm, nichttragende Wände mit einer Stärke von 11,5cm,
- Das Haus ist ein sog. Hanghaus, Garage für 2 Fahrzeuge im Untergeschoss,
...
Weitere Informationen
Sonstiges
Der Kaufpreis
beträgt für ein Haus EURO 370.000,-- jeweils mit Garten, Luft-Wärmepumpe, PV-Anlage, Garage für 2 Fahrzeuge und den Außenstellplatz,
Beim Kauf der 3 Häuser beträgt der Gesamt-Preis EUR 1.100.000,--.
Maklerprovision:
-ohne Käuferprovision-
Für eine Besichtigung
des...
Anbieter der Immobilie

Online-ID: 2nqbg5a
Referenznummer: 01761
Finde Angebote wie dieses
Hier geht es zu unserem Impressum, den Allgemeinen Geschäftsbedingungen, den Hinweisen zum Datenschutz und nutzungsbasierter Online-Werbung.