
Theodor Schöne GmbH
Herr Michael Lumpe
040 ···
Nr. anzeigenPreise & Kosten
Kaution
8.250,00
Warum sehe ich diese Anzeige? – Du siehst diese Anzeige basierend auf Ihrer Navigation auf unserer Website und den Suchkriterien, die du verwendet hast.
Lage
Die angebotenen Doppelhaushälften befinden sich in einem der beliebtesten Stadtteile im Norden Hamburgs - in Bergstedt. Dieser Stadtteil ist geprägt durch Villen- und EInfamilienhausbebauung, eingebettet in eine ruhige und familienfreundliche Umgebung.
Die Nähe zum Alsterwanderweg, weitläufigen Wiesen und Feldern lädt...
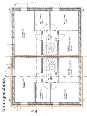
Das Haus
Kategorie
Doppelhaushälfte
Baujahr
2025
Bezug
zum 01.04.2026
Derzeitige Nutzung
frei
Energie & Heizung
Warum sehe ich diese Anzeige? – Du siehst diese Anzeige basierend auf Ihrer Navigation auf unserer Website und den Suchkriterien, die du verwendet hast.
Energieausweistyp
Verbrauchsausweis
Gebäudetyp
Wohngebäude
Baujahr laut Energieausweis
2024
Wesentliche Energieträger
Luft-/Wärmepumpe
Gültigkeit
bis 10.10.2034
Effizienzklasse
A+
Endenergieverbrauch
15,70 kWh/(m²·a)
Weitere Energiedaten
Haustyp
Niedrigenergiehaus
Heizungsart
Luft-/Wasser-Wärmepumpe
Details
Objektbeschreibung
Willkommen in Ihrem neuen Zuhause in Hamburg-Bergstedt!
Die modernen Doppelhaushälften werden als Neubau-Erstbezug vermietet. Alle Häuser verfügen über vier Zimmer und bieten bei insgesamt ca. 189 m² Mietfläche höchsten Wohnkomfort. Die Energieeffizienzklasse A+ wird durch die moderne Wärmepumpe...
Ausstattung
Weitere Extras werden geboten:
- Sonnenschutzverglasung an den meisten Fenstern
- pro Haushälfte eine eigene Fahrradbox für zwei Fahrräder
- pro Haushälfte ist ein Außenstellplatz in der Miete enthalten
- alle Parkplätze sind für eine E-Ladestation vorbereitet
Weitere Informationen
Sonstiges
Ein Bezug der Häuser ist zum 1. April 2026 möglich.
Der Mietvertrag wird mit einem Kündigungsausschluss von 24 Monaten abgeschlossen. Zudem wird eine Indexmiete vereinbart.
Alle verbrauchsabhängigen Kosten wie die Be- und Entwässerungs sowie Strom rechnet der Mieter direkt mit dem jeweiligen...
Anbieter der Immobilie
Theodor Schöne GmbH
Wendenstraße 29, 20097 Hamburg
Online-ID: 2nqjg5b
Referenznummer: Hohen-21-23
Finde Angebote wie dieses
Hier geht es zu unserem Impressum, den Allgemeinen Geschäftsbedingungen, den Hinweisen zum Datenschutz und nutzungsbasierter Online-Werbung.