

myImmoTrust GmbH
Herr Can Bulut
015 ···
Nr. anzeigenPreise & Kosten
Provision für Käufer
3,57 % inkl. MwSt. inkl. MwSt.
Lage
Die Immobilie befindet sich in Gernsbach, einer charmanten Stadt im nördlichen Schwarzwald. Gernsbach besticht durch seine harmonische Mischung aus urbaner Infrastruktur und naturnaher Umgebung. Einkaufsmöglichkeiten, Schulen, Kindergärten und medizinische Versorgung sind bequem erreichbar, sodass alle wichtigen Einrichtungen...
Das Haus
Kategorie
Einfamilienhaus
Baujahr
1963
Bezug
ab sofort
Energie & Heizung
Warum sehe ich diese Anzeige? – Du siehst diese Anzeige basierend auf Ihrer Navigation auf unserer Website und den Suchkriterien, die du verwendet hast.
Energieausweistyp
Bedarfsausweis
Gebäudetyp
Wohngebäude
Baujahr laut Energieausweis
1963
Wesentliche Energieträger
OEL
Gültigkeit
bis 11.12.2035
Effizienzklasse
G
Endenergiebedarf
227,30 kWh/(m²·a)
Weitere Energiedaten
Haustyp
Fertighaus
Energieträger
Öl
Heizungsart
offener Kamin, Zentralheizung
Details
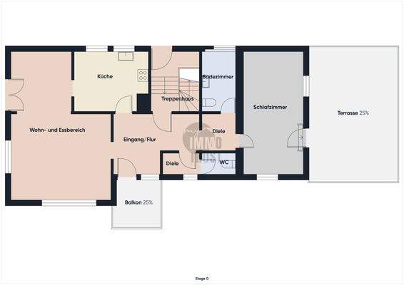
Objektbeschreibung
Dieses charmante Einfamilienhaus befindet sich in einer ruhigen, verkehrsberuhigten Wohnlage und bietet vielseitige Nutzungsmöglichkeiten. Aktuell wird das Haus lediglich als großzügiges Einfamilienhaus genutzt, kann jedoch ohne großen Aufwand wieder in zwei separate Wohneinheiten aufgeteilt und wie ursprünglich genutzt...
Ausstattung
- ruhige, verkehrsberuhigte Lage, ideal für Familien
- großer, gepflegter Garten mit viel Platz zum Entspannen
- zweifach verglaste Kunststofffenster (2008)
- Zu- und Abwasserleitungen, Wasserleitungen sowie Elektrik vollständig erneuert (2008)
- Gasanschluss vorbereitet und gelegt (2008)
- Zentralheizung (Öl)...
Preisinformation
1 Stellplatz
2 Garagenstellplätze, Kaufpreis je: 15.000,00 EUR
Weitere Informationen
Sonstiges
Der Eigentümer wurde aufgefordert den Energieausweis zu beschaffen.
Der Energieausweis befindet sich in Erstellung und wird bis zum Besichtigungstermin vorgelegt.
Sie haben selber eine Immobilie zu verkaufen oder kennen jemanden, der seine Immobilie verkaufen möchte? Dann sind wir der ideale...
Anbieter der Immobilie

Online-ID: 2nqux5d
Referenznummer: CBU1148
Finde Angebote wie dieses
Hier geht es zu unserem Impressum, den Allgemeinen Geschäftsbedingungen, den Hinweisen zum Datenschutz und nutzungsbasierter Online-Werbung.