
Marko Künne Immobilien
034 ···
Nr. anzeigenPreise & Kosten
Provision für Käufer
9.222,-€
Lage
Das Mehrfamilienhaus befindet sich in guter und gefragter Lage mit stabiler Wohnnachfrage. Die Umgebung ist geprägt von gewachsener Wohnbebauung und bietet eine attraktive Mischung aus urbaner Anbindung und wohnlicher Umgebung.
Einkaufsmöglichkeiten des täglichen Bedarfs, öffentliche Verkehrsmittel sowie weitere...
Das Renditeobjekt
Kategorie
Mehrfamilienhaus
Baujahr
1900
Energie & Heizung
Warum sehe ich diese Anzeige? – Du siehst diese Anzeige basierend auf Ihrer Navigation auf unserer Website und den Suchkriterien, die du verwendet hast.
Energieausweis: für diesen Gebäudetyp nicht notwendig
Weitere Energiedaten
Energieträger
Gas
Heizungsart
Zentralheizung
Details
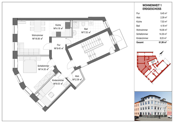
Objektbeschreibung
Zum Verkauf steht ein Mehrfamilienhaus in guter Lage, das sich bereits in einem weit fortgeschrittenen Sanierungszustand befindet und somit eine ideale Grundlage für Investoren oder Bauträger darstellt.
In den vergangenen Bauabschnitten wurden bereits wesentliche und kostenintensive Maßnahmen erfolgreich umgesetzt. Das...
Ausstattung
-Neues Dach
-Neue Fenster
-Sanierte Fassade
-Beton- und Mauerwerksarbeiten abgeschlossen
-Umfangreiche Demontagearbeiten bereits durchgeführt
-Vollständige Baupläne vorhanden
inkl. Elektroplanung
inkl. Sanitärplanung
-Baugenehmigung aus 2021 (abgelaufen...
Preisinformation
Nettorendite Soll in %: 25,24
Soll-Mieteinnahmen pro Jahr: 39.120,00 EUR
Weitere Informationen
Sonstiges
Alle Angaben sind ohne Gewähr und basieren ausschließlich auf Informationen, die uns von unserem Auftraggeber zur Verfügung gestellt wurden. Wir übernehmen keine Gewähr für die Vollständigkeit, Richtigkeit und Aktualität dieser Angaben.
Stichworte
Wohnfläche: 540,00 m², Gesamtfläche: 540,00 m²...
Anbieter der Immobilie
Online-ID: 2nraa57
Referenznummer: 606001
Finde Angebote wie dieses
Hier geht es zu unserem Impressum, den Allgemeinen Geschäftsbedingungen, den Hinweisen zum Datenschutz und nutzungsbasierter Online-Werbung.