

Maymar Real estate
Frau Yvette Boerner
003 ···
Nr. anzeigenPreise & Kosten
Provision für Käufer
provisionsfrei
Lage
Moderne Wohnungen in einer erstklassigen Wohngegend
Entdecken Sie diesen attraktiven Neubau-Wohnkomplex in Los Balcones, einem der beliebtesten und etabliertesten Viertel am Stadtrand von Torrevieja. In einer ruhigen Umgebung mit ausgezeichneter Anbindung an alle wichtigen Dienstleistungen gelegen, befindet sich diese...
Die Wohnung
Wohnungslage
Erdgeschoss
Bezug
Erstbezug
Wohnanlage
Details
Objektbeschreibung
Moderne Wohnungen mit privaten Außenbereichen
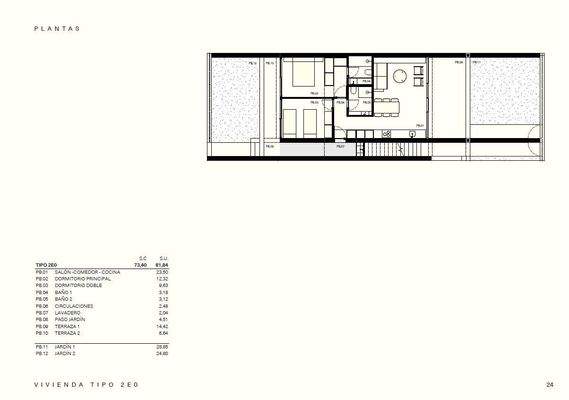
Der Komplex besteht aus 52 modernen Wohnungen auf einer Gesamtfläche von 6700 m2. Jede Immobilie verfügt über einen privaten Parkplatz und einen Abstellraum in der Tiefgarage. Die Wohnungen verfügen über 2 oder 3 Schlafzimmer und 2 Badezimmer, eines davon en...
Weitere Informationen
Stichworte
Zustand: Erstbezug, neuwertig
Anbieter der Immobilie

Online-ID: 2nrdc59
Referenznummer: N9509
Finde Angebote wie dieses
Hier geht es zu unserem Impressum, den Allgemeinen Geschäftsbedingungen, den Hinweisen zum Datenschutz und nutzungsbasierter Online-Werbung.