

ORANGE Immobilienagentur
Kontaktiere den Anbieter schriftlich, es ist keine Telefonnummer hinterlegt.
Preise & Kosten
Provision für Käufer
2,975% inkl. gesetzlicher MwSt. inkl. MwSt.
Lage
Die Lage dieses Bungalows verbindet ruhiges Wohnen im Grünen mit der Nähe zur Stadt. Winkelbrunn gehört zur Stadt Freyung und liegt eingebettet in die wunderschöne Landschaft des Bayerischen Waldes. Hier genießen Sie Natur pur - Wälder, Wiesen und ein unverbaubarer Ausblick - und sind dennoch nur wenige Minuten vom täglichen...
Das Haus
Kategorie
Bungalow
Baujahr
2021
Bezug
AB SOFORT
Derzeitige Nutzung
vermietet
Energie & Heizung
Warum sehe ich diese Anzeige? – Du siehst diese Anzeige basierend auf Ihrer Navigation auf unserer Website und den Suchkriterien, die du verwendet hast.
Energieausweistyp
Bedarfsausweis
Gebäudetyp
Wohngebäude
Baujahr laut Energieausweis
2021
Gültigkeit
bis 18.07.2034
Effizienzklasse
A+
Endenergiebedarf
24,70 kWh/(m²·a)
Weitere Energiedaten
Haustyp
Holzhaus
Energieträger
Holz
Heizungsart
Luft-/Wasser-Wärmepumpe, offener Kamin
Details
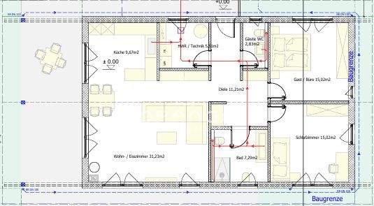
Objektbeschreibung
Ein Bungalow, der Herz und Verstand gleichermaßen begeistert. Fertiggestellt im Jahr 2023 in hochwertiger Holzständerbauweise, mit einem traumhaften Grundriss, unverbaubarem Blick ins Grüne und nur einen Katzensprung von Freyung entfernt - dieses Zuhause ist ein Ort zum Ankommen, Wohlfühlen und Investieren.
Schon beim...
Ausstattung
Ihr Domizil verfügt über:
* 1 großer lichtdurchflutender Wohn und Essbereich mit Zugang zur Terrasse & Garten.
* 1 hochwertige & moderne Küche mit inkl. Traum EBK mit Geräten.
* 1 Kamin.
* 1 großer Flur.
* 1 großes Badezimmer mit WC, Bidet, Doppelwaschbecken, einer barrierefreien Regendusche und...
Preisinformation
1 Carportplatz
1 Stellplatz
Nettokaltmiete: 1.500,00 EUR
Soll-Mieteinnahmen pro Jahr: 18.000,00 EUR
Ist-Mieteinnahmen pro Jahr: 18.000,00 EUR
Weitere Informationen
Sonstiges
Gerne sind wir für weitere Fragen und Informationen unter Tel.: 0151 / 118 609 92 erreichbar.
Bei Kauf verpflichtet sich der Käufer an ORANGE Immobilienagentur - Iris Bauer, selbst. Immobilienmaklerin, eine Maklerprovision in der angegebenen Höhe nach notariellem Kaufvertrag zu leisten. Durch Ihre...
Anbieter der Immobilie
ORANGE Immobilienagentur
Kumpfmühler Str. 59, 93051 Regensburg
Kontaktiere den Anbieter schriftlich, es ist keine Telefonnummer hinterlegt.
Online-ID: 2nrnn52
Referenznummer: 105-KH-IB
Finde Angebote wie dieses
Hier geht es zu unserem Impressum, den Allgemeinen Geschäftsbedingungen, den Hinweisen zum Datenschutz und nutzungsbasierter Online-Werbung.