
Jones Lang LaSalle SE - Office Leasing Leipzig
Herr Kay Förster
+49 ···
Nr. anzeigenPreise & Kosten
Provision für Mieter
provisionsfrei
Abschreibung/Anlage
Denkmalschutz-Afa
Warum sehe ich diese Anzeige? – Du siehst diese Anzeige basierend auf Ihrer Navigation auf unserer Website und den Suchkriterien, die du verwendet hast.
Lage
Die Leipziger Innenstadt zeichnet sich durch eine kompakte City mit sehr attraktiven Handelsstrukturen und einem Mix aus aufwendig sanierten Handelshöfen, Passagen und stilvollen Neubauten aus. Das Geschäftshaus befindet sich in der Katharinenstraße im Herzen der Stadt zwischen dem Brühl und dem Leipziger Marktplatz. Die...
Büro-/Praxisfläche
Kategorie
Bürofläche
Baujahr
1912
Bezug
Auf Anfrage
Details
Objektbeschreibung
Das im Jahr 1912 errichtete Bürogebäude vereint Jugendstil-Eleganz mit den funktionalen Prinzipien des Reformstils. Der repräsentative Dreiflügelbau um einen zentralen Hof erstreckt sich über fünf Geschosse plus ausgebautes Dachgeschoss und bietet optimale Flächenausnutzung bei hervorragender Belichtung.
Die imposante...
Weitere Informationen
Stichworte
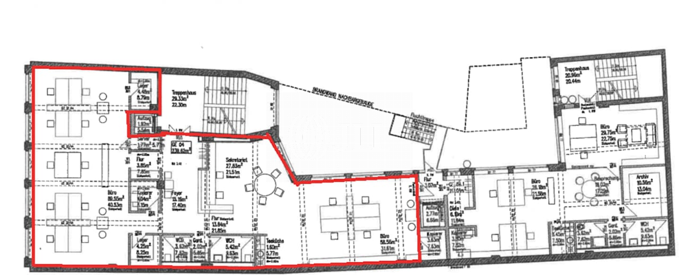
Gesamtfläche: 592,00 m²
Sonstiges: EDV-Verkabelung
Anbieter der Immobilie
Jones Lang LaSalle SE - Office Leasing Leipzig
Petersstraße 12-14, 04109 Leipzig
Online-ID: 2nrse5b
Referenznummer: 4@of167798@14@0
Finde Angebote wie dieses
Hier geht es zu unserem Impressum, den Allgemeinen Geschäftsbedingungen, den Hinweisen zum Datenschutz und nutzungsbasierter Online-Werbung.