
WOGETRA
Vermietung
034 ···
Nr. anzeigenPreise & Kosten
Kaution
1.085,00
Warum sehe ich diese Anzeige? – Du siehst diese Anzeige basierend auf Ihrer Navigation auf unserer Website und den Suchkriterien, die du verwendet hast.
Lage
Mit dem Schönauer Park, Robert-Koch-Park und Kulkwitzer See wird Grünau, am westlichen Rand von Leipzig gelegen, seinem Namen gerecht. Das Viertel ist durch seine geschlossene Quartiersbebauung bei Jung und Alt gleichermaßen beliebt. Kitas, Schulen, Vereine, Bibliotheken und Spielplätze beleben das Wohngebiet. Der Wohnkomplex...
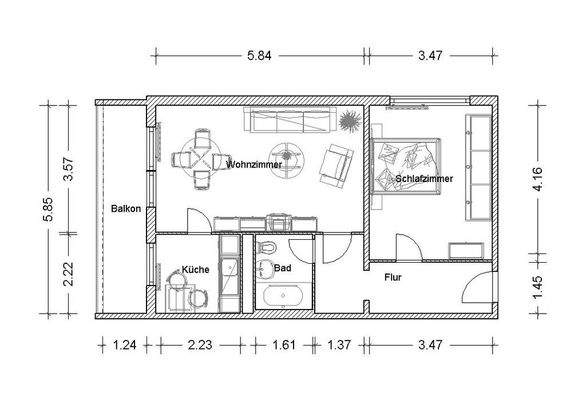
Die Wohnung
Wohnungslage
5. Geschoss
Bezug
01.02.2026
Wohnanlage
Energie & Heizung
Warum sehe ich diese Anzeige? – Du siehst diese Anzeige basierend auf Ihrer Navigation auf unserer Website und den Suchkriterien, die du verwendet hast.
Energieausweistyp
Verbrauchsausweis
Gebäudetyp
Wohngebäude
Wesentliche Energieträger
FERN
Gültigkeit
27.09.2018 bis 01.09.2028
Endenergieverbrauch
94,00 kWh/(m²·a)
Weitere Energiedaten
Energieträger
Fernwärme
Heizungsart
Zentralheizung
Details
Objektbeschreibung
Das 11- geschossige Wohnhaus verfügt über eine Vielfalt von verschiedenen Wohnraumgrößen. Von einer kleinen 1-Raum-Wohnung mit knapp 33 m² bis hin zu geräumigen 4-Raum-Wohnungen mit 88 m² ist eine große Vielfalt von Grundrissen vorhanden. Viele Wohnungen verfügen über einen Balkon. Ein Aufzug fährt bis in das 10. Geschoss.
Ausstattung
Die Wände und Decken haben weiße Raufasertapeten. Der Fußboden hat einen PVC in Holzoptik. Die Innentüren sind weiß. Das Bad ist gefliest und mit einer Wanne versehen.
Weitere Informationen
Stichworte
Anzahl Balkone: 1, 11 Etagen, Wohnungsnr.: 141/2/65
Anbieter der Immobilie
Online-ID: 2nrxu52
Referenznummer: 141/2/65
Finde Angebote wie dieses
Hier geht es zu unserem Impressum, den Allgemeinen Geschäftsbedingungen, den Hinweisen zum Datenschutz und nutzungsbasierter Online-Werbung.