
Schantl ITH Immobilientreuhand GmbH
Herr Samir Agha-Schantl
004 ···
Nr. anzeigenPreise & Kosten
Provision für Käufer
3% des Kaufpreises zzgl. 20% USt.
Lage
Zwischen Wilhelminenberg und Innenstadt - ein liebevoller Mix der für jeden Etwas dabei hat... Profitieren Sie von einer tollen Infrastruktur! Alle Geschäfte des täglichen Bedarfs befinden sich in Gehweite, ebenso Schulen, Kindergärten, 2 Parkanlagen und zahlreiche Cafés und Lokale.
Der nahe Wilhelminenberg oder die...
Das Renditeobjekt
Baujahr
1894
Bezug
ab sofort
Energie & Heizung
Warum sehe ich diese Anzeige? – Du siehst diese Anzeige basierend auf Ihrer Navigation auf unserer Website und den Suchkriterien, die du verwendet hast.
Heizwärmebedarf (HWB)
87,60 kWh/(m²·a)
Gesamtenergieeffizienz (fGEE)
1,80
Weitere Energiedaten
Energieträger
Gas
Heizungsart
Zentralheizung
Details
Objektbeschreibung
TOP-Investment! Sehr bonitätsstarker Mieter + Traumhaftes Eck-Altbauhaus + Perfekte Infrastruktur und Anbindung mit Straßenbahn vor der Türe! Nutzen Sie diese Gelegenheit!
Nutzen Sie diese tolle Möglichkeit - Tolles Preis-Leistungs-Verhältnis!
Ihre neues Investment wird Sie begeistern - beim Mieter...
Weitere Informationen
Stichworte
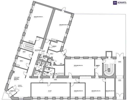
Bürofläche: 515,15 m², Anzahl der Badezimmer: 2, Anzahl der separaten WCs: 6, Kellerfläche: 89,95 m², Bundesland: Wien, 4 Etagen
Anbieter der Immobilie

Schantl ITH Immobilientreuhand GmbH
Messendorferstraße 71a, 8041 Graz
Online-ID: 2nrz653
Referenznummer: OBGC2026011311270195815f7d7bf28
Finde Angebote wie dieses
Günstige Immobilienfinanzierung einfach online berechnen
Persönliches Angebot berechnenWarum sehe ich diese Werbung? – Du siehst diese Werbung basierend auf Deiner Navigation auf unserer Website und der von Dir verwendeten Suchkriterien.
Diese Werbung wird bezahlt von durchblicker
Werbung melden
Hier geht es zu unserem Impressum, den Allgemeinen Geschäftsbedingungen, den Hinweisen zum Datenschutz und nutzungsbasierter Online-Werbung.