
Antaris Immobilien GmbH
Herr André Voigt
+49 ···
Nr. anzeigenPreise & Kosten
Provision für Mieter
provisionsfrei
Warum sehe ich diese Anzeige? – Du siehst diese Anzeige basierend auf Ihrer Navigation auf unserer Website und den Suchkriterien, die du verwendet hast.
Lage
Die Röhrsdorfer Allee in Chemnitz-Röhrsdorf ist ein etabliertes Gewerbe- und Industriegebiet im Nordwesten der Stadt. Chemnitz selbst ist mit rund 245.000 Einwohnern das wirtschaftliche Zentrum von Südwestsachsen und ein bedeutender Standort für Handel, Produktion und Logistik. In unmittelbarer Nähe zum Objekt befindet sich...
Die Ladenfläche
Baujahr
1995
Bezug
01.03.2026
Energie & Heizung
Warum sehe ich diese Anzeige? – Du siehst diese Anzeige basierend auf Ihrer Navigation auf unserer Website und den Suchkriterien, die du verwendet hast.
Wärme
Strom
Energieausweistyp
Verbrauchsausweis
Gebäudetyp
Nicht-Wohngebäude
Baujahr laut Energieausweis
2009
Wesentliche Energieträger
Erdgas leicht
Gültigkeit
19.12.2025 bis 19.12.2035
Endenergieverbrauch (Wärme)
154,90 kWh/(m²·a)
Endenergieverbrauch (Strom)
26,90 kWh/(m²·a)
Details
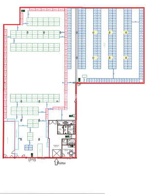
Objektbeschreibung
Das zur Vermietung stehende Gewerbeobjekt verfügt über eine ca. 1.555 m² große, vollständig ebenerdige Nutzfläche im Erdgeschoss. Die Fläche teilt sich in ca. 796 m² Verkaufsfläche, ca. 621 m² Lagerfläche sowie ca. 138 m² Büro- und Sozialflächen auf.
Die Einheit eignet sich für Handels-, Lager- oder kombinierte...
Ausstattung
- Warmhalle
- 4 Tore, 3 elektrisch betrieben; Transporter mit Hochdach können in Halle fahren
- Bodenbelastbarkeit mindestens 10 kN (20 cm Stahlbeton)
- Unterkante Binder (UKB) 8,17 m bis 9,49 m
- Andienung ebenerdig, keine Rampe
- Warmhalle
- 4 Tore, 3 elektrisch betrieben; Transporter mit Hochdach können...
Weitere Informationen
Sonstiges
Widerrufsrecht
Sie können Ihre Vertragserklärung innerhalb von 14 Tagen ohne Angaben von Gründen in Textform (z.B. Brief, E-Mail) widerrufen. Die Frist beginnt nach Erhalt dieser Belehrung in Textform, jedoch nicht vor Vertragsabschluss und auch nicht vor Erfüllung unserer Informationspflichten gem. Art. 246 §...
Anbieter der Immobilie
Online-ID: 2ns2p5b
Referenznummer: D220115
Finde Angebote wie dieses
Hier geht es zu unserem Impressum, den Allgemeinen Geschäftsbedingungen, den Hinweisen zum Datenschutz und nutzungsbasierter Online-Werbung.