




Hotel zum Kauf2350000 €30 Zimmer • 119 m² Gastrofläche • 3.466 m² Grundstück
2350000 €
30 Zimmer • 119 m² Gastrofläche • 3.466 m² Grundstück
Boutiquehotel, Restaurant & Lebensentwurf im Bayerischen Wald
Merkmale
- 3.466 m² Grundstück
- 12 Stellplätze: 12 Außen-Stellplätze
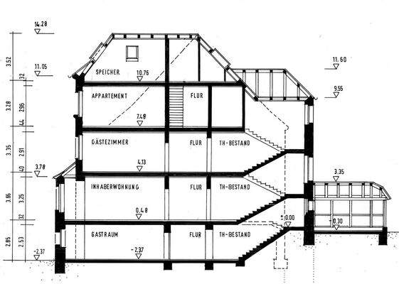
Grundrisse
Grundrisse
1 / 6
Realisiere Dein Projekt
Bausubstanz und Energie
Der Anbieter hat keine Informationen zum Energieverbrauch bereit gestellt.
- Baujahr1907
Preisdetails
Kaufpreis
2350000 €
Provision für Käufer
Käuferprovision beträgt 3,57 % (inkl. MwSt.) des beurkundeten Kaufpreises
Weitere Preisinformationen
12 Stellplätze
Geschätzte Gesamtkosten
2.433.895 €1
Kaufpreis
2.350.000 €
Kaufnebenkosten
83.895 €
2Provision für Käufer (3,57%)
83.895 €
1Der angezeigte Wert ist eine automatisch berechnete Schätzung von immowelt.
2Bei den Angaben handelt es sich um ortsübliche Werte. Individuelle Kosten können abweichen.
Lage

Breitenberg (94139)
Der Anbieter hat die genaue Adresse nicht freigegeben
Weitere Informationen
Weitere Services
Lust auf eine Besichtigung?
Eine Frage zur Immobilie?
Über den Anbieter
Heiliggeistgasse 1, 94032 Passau
Partnerschaft

Herr Mathias ZankDein Kontakt
Online-ID: 2nsg853
Referenznummer: 26 166 001


VON POLL IMMOBILIEN Passau - Mathias Zank
Wie zufrieden bist du mit dieser Seite (nicht mit der Immobilie selbst)?

