Weitere Informationen
Sonstiges
Der Text wurde ins Deutsche mithilfe einer automatischen Software übersetzt und es ist möglich, dass er einige Ungenauigkeiten enthält. Für eine korrekte Beschreibung und aktuelle Informationen zur Immobilie wenden Sie sich bitte an unseren Makler!
Wir präsentieren Ihnen eine geräumige, nach Süden ausgerichtete Zweizimmerwohnung zum Verkauf in einem neuen Wohngebäude mit moderner Fassade und günstiger Lage im Stadtteil "Malinova Dolina" in Sofia.
VOR AKT 16!
"Malinova Dolina" ist ein neues, sich rasant entwickelndes Viertel in Sofia, das dank der sauberen Luft, des Panoramablicks auf das Vitosha-Gebirge und der entstehenden Infrastruktur - neue Wohngebäude, neue Straßen, Anbindung an den Autobahnring über den "Prof. Krikor Azaryan"-Boulevard sowie ausgewiesene Grundstücke für eine Schule und einen Kindergarten - in naher Zukunft zu den schönsten und begehrtesten Wohngegenden zählen wird. Die Lage des Komplexes ist ideal: Die Nationale Sportakademie und die zahlreichen Angebote des Studentenviertels sind nur sieben Gehminuten entfernt.
Parameter
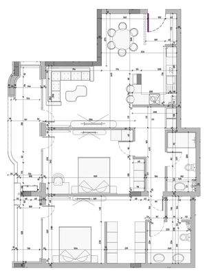
Die Wohnung befindet sich im 1. Stock, ist nach Süden ausgerichtet und hat eine Gesamtfläche von 151,83 m², die funktional aufgeteilt ist in eine Eingangshalle, zwei Badezimmer, ein Wohnzimmer mit Küchenbereich und Esszimmer, zwei Schlafzimmer, eines davon mit Kleiderschrank, und zwei Terrassen.
Die Immobilie wird im fertiggestellten Zustand gemäß den bulgarischen Baustandards vermietet.
Über das Gebäude
Das Gebäude verfügt über vier Eingänge und sechs oberirdische Geschosse, darunter ein Erdgeschoss. Es stehen funktional gestaltete Zwei- und Dreizimmerwohnungen mit maximalem Platzangebot zur Auswahl. Die Erdgeschosswohnungen haben einen eigenen Hof. Parkplätze und Garagen befinden sich auf zwei Tiefgaragenebenen.
Für den Bau wurden erstklassige Materialien und Technologien verwendet. Die Architektur ist modern, in Weiß- und Dunkelgrautönen gehalten, mit dekorativen Elementen in Holzoptik. Die Gemeinschaftsbereiche sind luxuriös ausgestattet und verfügen über einen hochwertigen Aufzug.
Die Beheizung erfolgt über eine Zentralheizung.
Wir freuen uns auf Ihre Anfrage.
Wenn Sie eine Immobilie besichtigen möchten, die Sie interessiert, oder eines unserer Büros besuchen möchten, kontaktieren Sie uns bitte. Um einen Termin für eine Besichtigung oder ein Treffen zu vereinbaren, rufen Sie uns bitte unter der in der Anzeige angegebenen Telefonnummer an oder senden Sie uns eine Anfrage per E-Mail. Unser Berater unterstützt Sie gerne mit allen notwendigen Informationen und findet einen passenden Termin für Sie.
Sind Sie auf der Suche nach der passenden Immobilie für Sie?
Zögern Sie nicht, uns zu kontaktieren und uns Ihre Wünsche und Vorlieben mitzuteilen. Unser Team führt eine gründliche Marktanalyse durch, um Ihnen Immobilien anzubieten, die genau Ihren Kriterien entsprechen. Wir verfügen über ein außergewöhnliches Portfolio an hochwertigen und exklusiven Häusern, die nur unseren Kunden zur Verfügung stehen. Um als Erster Informationen darüber zu erhalten, kontaktieren Sie uns.
Zusätzliche Dienstleistungen
Als geschätzter Kunde unseres Unternehmens genießen Sie den Vorteil, die Dienste unseres erfahrenen Rechtsteams kostenfrei in Anspruch zu nehmen. Darüber hinaus bieten wir Ihnen umfassende Lösungen, darunter Gebäudeversicherungen, kostenlose Finanzberatung sowie attraktive Finanzierungskonditionen. Unser Leistungsspektrum umfasst auch die Bereiche Wiederverkauf, Vermietung und Immobilienverwaltung. Hochwertige Renovierungen und Einrichtungsarbeiten vermitteln wir Ihnen über spezialisierte Unternehmen unserer Unternehmensgruppe, mit denen wir seit Langem zusammenarbeiten.
Besichtigungen
Wir können eine Besichtigung der Immobilie zu einer für Sie passenden Zeit vereinbaren. Bitte kontaktieren Sie den für dieses Angebot zuständigen Makler und teilen Sie ihm die von Ihnen gewünschte Uhrzeit mit.
Reservierung der Immobilie
Gegen eine nicht erstattete Anzahlung in Höhe von 2.000 Euro wird die Immobilie reserviert. Weitere Besichtigungen mit anderen Käufern finden nicht statt und Makler beginnt mit der Vorbereitung der Dokumente für den Abschluss des endgültigen Vertrags für Eigentumsübertragung. Bitte kontaktieren Sie den zuständigen Makler für mehr Information über den Kauf einer Immobilie und Zahlungsarten.
Zusatzleistungen und Kundendienst
Wir sind ein seriöses Unternehmen und werden nicht nur während des Kaufs, sondern auch danach bei Ihnen sein und Ihnen auf Ihren Wunsch zusätzliche Dienstleistungen anbieten, um die neu gekaufte Immobilie vollständig und nahtlos zu nutzen. Die Dienstleistungen, die wir anbieten können, umfassen die Erlangung einer Hypothekengenehmigung, eine Versicherung für bewegliche und unbewegliche Sachen, eine Lebensversicherung, eine Kranken- und Autoversicherung, Bau- und Reparaturaktivitäten, Möbel, Rechts- und Buchhaltungsdienstleistungen usw.
Bei uns können Sie nicht nur eine Immobilie mieten, sondern auch eine Reihe von Zusatzleistungen in Anspruch nehmen. Wir können Versicherungen für bewegliches und unbewegliches Vermögen, Lebensversicherungen, Kranken- und Kfz-Versicherungen, Bau- und Reparaturarbeiten, Möbel, Rechts- und Buchhaltungsdienstleistungen usw. anbieten.
Stichworte
Lage im Bau: rechts vorne