

Living Fertighaus GmbH Vertriebsbüro
Herr Oliver Zschörnig
+49 ···
Nr. anzeigenPreise & Kosten
Provision für Käufer
provisionsfrei
Lage
"Schkölen liegt im nördlichen Teil des Saale-Holzland-Kreises (SHK) in Thüringen und bietet alle Vorzüge einer Stadt. Schkölen hat ca. 3000 Einwohner und ist flächenmäßig mit ca. 5300ha die größte Stadt im SHK.
Sie verfügt über Kindereinrichtungen, wie Kita und Grundschule. Die ärztliche Betreuung wird über Einzelpraxen...
Das Haus
Baujahr
2026
Energie & Heizung
Warum sehe ich diese Anzeige? – Du siehst diese Anzeige basierend auf Ihrer Navigation auf unserer Website und den Suchkriterien, die du verwendet hast.
Energieausweistyp
Bedarfsausweis
Gebäudetyp
Wohngebäude
Baujahr laut Energieausweis
2026
Wesentliche Energieträger
Strom
Effizienzklasse
A+
Endenergiebedarf
18,00 kWh/(m²·a)
Weitere Energiedaten
Haustyp
Fertighaus, KfW 40
Heizungsart
Luft-/Wasser-Wärmepumpe
Details
Objektbeschreibung
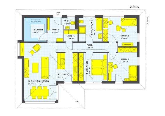
Du möchtest dein neues Zuhause grenzenlos genießen, ohne Schwellen und eben leben? Aber du willst dabei auf nichts verzichten? Das musst du auch nicht! Im SOLUTION 110 kannst du all deine Ideen und Vorstellungen ausleben. Große Gemeinschaftsbereiche, drei kuschelige Schlafräume und intelligente Stauflächen machen diesen...
Ausstattung
?? Living Haus - Mehr als ein Haus, dein Zuhause! ??
Bauen kann kompliziert sein - muss es aber nicht! Mit Living Haus bekommst du alles, was du brauchst, direkt mit dazu. Keine versteckten Kosten, kein Kleingedrucktes - einfach ein perfekt durchdachtes Zuhause. Von außen fix und fertig, von innen individuell - genau...
Weitere Informationen
Sonstiges
"?? Dein perfektes Grundstück wartet - aber nicht ewig! ??
Du träumst von den eigenen vier Wänden? Dann fehlt nur noch das passende Bauland! Mit Living Haus sicherst du dir das perfekte Grundstück für dein neues Zuhause. ??
?? Jetzt Termin vereinbaren & durchstarten: 0178-8884022
?? Wichtige...
Anbieter der Immobilie
Living Fertighaus GmbH Vertriebsbüro
Chopinstrasse 25, 04103 Leipzig

Online-ID: 2nsp457
Referenznummer: 30764-5515
Finde Angebote wie dieses
Hier geht es zu unserem Impressum, den Allgemeinen Geschäftsbedingungen, den Hinweisen zum Datenschutz und nutzungsbasierter Online-Werbung.