
Katzmann Immobilien GmbH
Herr Jörg Allmannsberger
+49 ···
Nr. anzeigenPreise & Kosten
Provision für Käufer
Bitte beachte, das Angebot kann bei Vertragsabschluss die Zahlung einer Provision beinhalten. Weitere Informationen erhältst Du vom Anbieter.
Lage
Die Wohnung liegt in erhöhter Position oberhalb von Primosten und ist leicht mit
dem Auto erreichbar. Alle öffentlichen Einrichtungen befinden sich in der Nähe. Die
Entfernung zum nächsten Strand beträgt circa 1.250 Meter, das Ortszentrum von
Primosten ist etwa 1.800 Meter entfernt. Die asphaltierte...
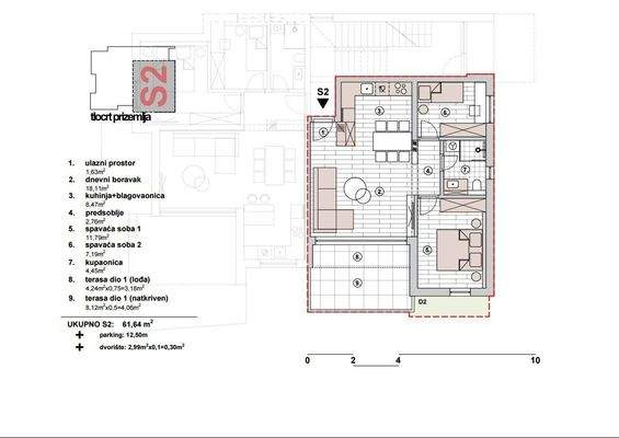
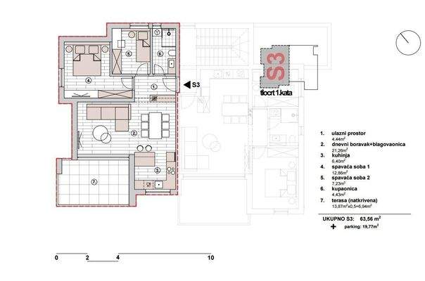
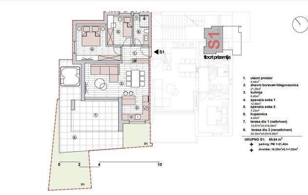
Die Wohnung
Wohnanlage
Energie & Heizung
Warum sehe ich diese Anzeige? – Du siehst diese Anzeige basierend auf Ihrer Navigation auf unserer Website und den Suchkriterien, die du verwendet hast.
Energieausweistyp
Bedarfsausweis
Gebäudetyp
Wohngebäude
Effizienzklasse
A
Details
Objektbeschreibung
In ruhiger, erhöhter Lage oberhalb von Primosten entsteht diese moderne
Wohnung im Hochparterre eines exklusiven Neubaus. Das nach höchsten Standards
des zeitgemäßen Wohnens konzipierte Gebäude befindet sich derzeit im Bau, der
Einzug ist für Sommer 2026 geplant. Die Lage vereint einen...
Ausstattung
Besonderer Wert wurde auf Qualität und Wohnkomfort gelegt. Die Wohnung
überzeugt mit erstklassiger Ausstattung:
- Fußbodenheizung für angenehme Wärme
- Hochwertige Aluminium- und PVC-Fenster mit Insektenschutz
- Elektrisch betriebene Rollläden
- Bodenbeläge aus hochwertiger Keramik und erstklassigem...
Preisinformation
1 Garagenstellplatz
Weitere Informationen
Sonstiges
Stellplatz mit Zukunftstechnologie
Zur Wohnung gehört ein Parkplatz von 12,50 Quadratmetern, der bereits mit einer
Ladestation für Elektro- oder Hybridfahrzeuge ausgestattet ist. Diese
zukunftsorientierte Ausstattung unterstreicht den modernen Charakter des Objekts.
Fertigstellung
Das...
Anbieter der Immobilie
Online-ID: 2nspl52
Referenznummer: KJA-000017
Finde Angebote wie dieses
Hier geht es zu unserem Impressum, den Allgemeinen Geschäftsbedingungen, den Hinweisen zum Datenschutz und nutzungsbasierter Online-Werbung.