
SAQURA Immobilien GmbH
Frau Olivera Jovicic
004 ···
Nr. anzeigenPreise & Kosten
Provision für Käufer
Bitte beachte, das Angebot kann bei Vertragsabschluss die Zahlung einer Provision beinhalten. Weitere Informationen erhältst Du vom Anbieter.
Lage
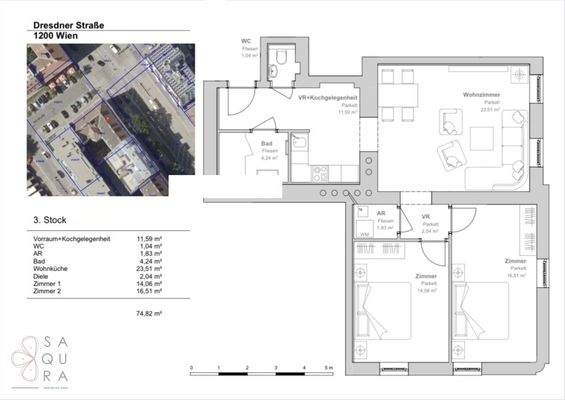
Die Dresdner Straße befindet sich im 20. Wiener Gemeindebezirk, Brigittenau, und bietet eine hervorragende Anbindung an die städtische Infrastruktur.
Verkehrsanbindung:
Öffentliche Verkehrsmittel: Die Straßenbahnlinien 2 und 5 halten in unmittelbarer Nähe, was eine schnelle Verbindung zum Stadtzentrum und...
Die Wohnung
Wohnungslage
3. Geschoss
Energie & Heizung
Warum sehe ich diese Anzeige? – Du siehst diese Anzeige basierend auf Ihrer Navigation auf unserer Website und den Suchkriterien, die du verwendet hast.
Heizwärmebedarf (HWB)
28,80 kWh/(m²·a)
Gesamtenergieeffizienz (fGEE)
0,70
Details
Objektbeschreibung
Modernes Wohnen in hochwertig sanierter 3-Zimmer-Wohnung
Sind Sie auf der Suche nach einer stilvollen, hochwertig sanierten Wohnung mit optimaler Anbindung und hervorragender Wohnqualität?
Diese kernsanierte 3-Zimmer-Wohnung bietet ein durchdachtes Wohnkonzept mit hellen Räumen, einer Einbauküche und einer...
Weitere Informationen
Sonstiges
Kontaktieren Sie uns für einen Besichtigungstermin
Für die Vereinbarung eines Besichtigungstermins freuen wir uns auf Ihre schriftliche Anfrage! Senden Sie uns gerne direkt Ihre Terminwünsche, damit wir die Besichtigung optimal nach Ihren Vorstellungen gestalten können.
Exklusive Immobilien, die Sie...
Anbieter der Immobilie
SAQURA Immobilien GmbH
Riesgasse 3/14, 1030 WIEN
Online-ID: 2nstz54
Referenznummer: 01620
Finde Angebote wie dieses
Günstige Immobilienfinanzierung einfach online berechnen
Persönliches Angebot berechnenWarum sehe ich diese Werbung? – Du siehst diese Werbung basierend auf Deiner Navigation auf unserer Website und der von Dir verwendeten Suchkriterien.
Diese Werbung wird bezahlt von durchblicker
Werbung melden
Hier geht es zu unserem Impressum, den Allgemeinen Geschäftsbedingungen, den Hinweisen zum Datenschutz und nutzungsbasierter Online-Werbung.