
ohne-makler.net - Immobilien selbst vermarkten
Herr/Frau ohne-makler.net Kundenservice
040 ···
Nr. anzeigenPreise & Kosten
nicht in Warmmiete enthalten
Kaution
2.070,00
Warum sehe ich diese Anzeige? – Du siehst diese Anzeige basierend auf Ihrer Navigation auf unserer Website und den Suchkriterien, die du verwendet hast.
Lage
Die ruhige und gepflegte Wohnanlage befindet sich im Stadtbezirk Stieghorst.
In der näheren Umgebung sind Supermärkte, Bäckereien, Ärzte und weitere Einrichtungen des täglichen Bedarfs, sowie ein Fitness Studio.
Die Verkehrsanbindung ist sehr gut. Während man einerseits mit dem Auto rasch die A2 erreichen kann...
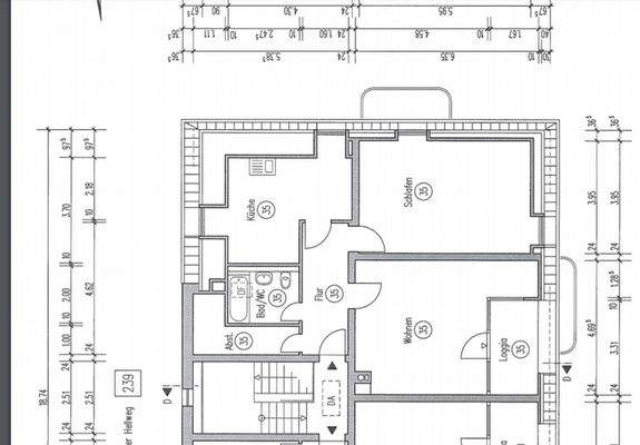
Die Wohnung
Wohnungslage
3. Geschoss (Dachgeschoss)
Bezug
sofort
Wohnanlage
Energie & Heizung
Warum sehe ich diese Anzeige? – Du siehst diese Anzeige basierend auf Ihrer Navigation auf unserer Website und den Suchkriterien, die du verwendet hast.
Energieausweistyp
Bedarfsausweis
Gebäudetyp
Wohngebäude
Effizienzklasse
D
Endenergiebedarf
120,00 kWh/(m²·a)
Weitere Energiedaten
Energieträger
Gas
Heizungsart
Zentralheizung
Details
Objektbeschreibung
Einziehen und wohlfühlen: Diese frisch renovierte Wohnung überzeugt bereits beim Eintreten durch ihre helle, lichtdurchflutete Atmosphäre und eine durchdachte Raumaufteilung.
In den Wohnräumen sorgt warmes Echtholzparkett für ein besonders wohnliches Gefühl. Ein Balkon mit Westausrichtung und Blick ins Grüne rundet...
Ausstattung
Balkon, Garten, Keller, Vollbad, Parkett, Fliesen
Bemerkungen:
Erstbezug nach Renovierung
große Loggia
neue Keramik und Armaturen im Bad
neue energetische Kunststofffenster
Waschmaschinenanschluss im Bad
Abstellraum in der Wohnung
eigener Kellerraum ca. 8 qm
eigener PKW-Stellplatz direkt vor...
Preisinformation
1 Stellplatz, Miete: 20,00 EUR
Nettokaltmiete: 670,00 EUR
Weitere Informationen
Sonstiges
Heizungsart: Zentralheizung
Energieträger: Gas
Sie haben die Möglichkeit einen Besichtigungstermin am Sonntag, 18.01.2026 zwischen 11 und 17 Uhr zu vereinbaren.
Bitte senden Sie mir Ihre Anfrage zusammen mit einigen Angaben zu Ihrer Person und Ihren Kontaktdaten.
Nach Ihrer Anfrage rufe...
Anbieter der Immobilie
ohne-makler.net - Immobilien selbst vermarkten
Humboldtstr. 25 A, 21509 Glinde
Online-ID: 2nt3452
Referenznummer: 169220
Finde Angebote wie dieses
Hier geht es zu unserem Impressum, den Allgemeinen Geschäftsbedingungen, den Hinweisen zum Datenschutz und nutzungsbasierter Online-Werbung.