

Kerstin Jung Immobilien
Frau Kerstin Jung
+49 ···
Nr. anzeigenPreise & Kosten
Warum sehe ich diese Anzeige? – Du siehst diese Anzeige basierend auf Ihrer Navigation auf unserer Website und den Suchkriterien, die du verwendet hast.
Lage
Lagebeschreibung
Erlangen - Zentrum, ehemaliges Gossen-Gelände, direkte Nähe zur Fußgängerzone.
- 7 Minuten zum Bahnhof.
- 5 Minuten zu Siemens/Universität, etc.
- 12 Minuten zu Siemens Forchheim.
- 15 Minuten zu Adidas, Puma, Schäffler.
- 18 Minuten zum Flughafen Nürnberg.
- 1 Minute zur...
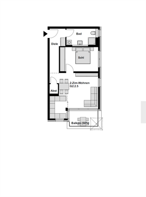
Die Wohnung
Wohnungslage
2. Geschoss
Bezug
01.04.2026
Wohnanlage
Energie & Heizung
Warum sehe ich diese Anzeige? – Du siehst diese Anzeige basierend auf Ihrer Navigation auf unserer Website und den Suchkriterien, die du verwendet hast.
Energieausweistyp
Bedarfsausweis
Gebäudetyp
Wohngebäude
Baujahr laut Energieausweis
2016
Wesentliche Energieträger
Fernwärme
Gültigkeit
07.06.2016 bis 06.06.2026
Effizienzklasse
A
Endenergiebedarf
49,00 kWh/(m²·a)
Weitere Energiedaten
Energieträger
Fernwärme
Heizungsart
Zentralheizung
Details
Objektbeschreibung
Freiraum für individuelles Leben - diese Wohnanlage bietet Wohnraum mit exzellenter Ausstattung in zentraler, urbaner Lage. 1-4-Zimmer-Wohnungen und Penthäuser ergeben ein anziehendes Angebot mit den unterschiedlichsten Vorzügen und einer zeitlosen Linie. Folgende, entscheidende Vorteile bieten alle Wohnungen in den Erlanger...
Ausstattung
Kompakter Grundriss und edle Ausstattung!
Über den Flur erreichen Sie das schöne, helle Wohnzimmer mit offener Küche und Ausgang zum Balkon. Die Küche ist mit einer hochwertigen, helle Einbauküche, mit allen Elektrogeräten, ausgestattet. Diese wird monatlich mit 70 € zur Kaltmiete addiert.
Das Schlafzimmer grenzt...
Preisinformation
1 Tiefgaragenstellplatz, Miete: 85,00 EUR
Weitere Informationen
Sonstiges
Die Erlanger Höfe!
Modernes Kozept! Stylisches, urbanes Wohnen im Herzen von Erlangen.
Balance: Persönlicher Rückzugsort mit allen Annehmlichkeiten und großzügigen Grünflächen.
Architektur/Design: Hohe Wohnqualität durch zeitgemäßen Komfort und modernster Gestaltung.
Infrastruktur: Entspanntes Zuhause...
Dokumente
Anbieter der Immobilie
Kerstin Jung Immobilien
Riversideplatz 7, 91052 Erlangen

Online-ID: 2ntmm52
Referenznummer: 342 (1/342)
Finde Angebote wie dieses
Hier geht es zu unserem Impressum, den Allgemeinen Geschäftsbedingungen, den Hinweisen zum Datenschutz und nutzungsbasierter Online-Werbung.