
VON POLL IMMOBILIEN Bautzen - BLS Immobilien GmbH
Herr Andreas Schwarz
004 ···
Nr. anzeigenPreise & Kosten
Provision für Käufer
Käuferprovision beträgt 3,57 % (inkl. MwSt.) des beurkundeten Kaufpreises
Lage
Doberschau-Gaußig in Sachsen besticht durch seine ländliche Idylle und eine stabile, familienfreundliche Gemeinschaft von rund 4.200 Einwohnern. Die ausgewogene Altersstruktur und die ruhige Atmosphäre schaffen ein sicheres und harmonisches Umfeld, das besonders Familien anspricht, die Wert auf Lebensqualität und Geborgenheit...
Das Haus
Kategorie
Einfamilienhaus
Baujahr
1870
Energie & Heizung
Warum sehe ich diese Anzeige? – Du siehst diese Anzeige basierend auf Ihrer Navigation auf unserer Website und den Suchkriterien, die du verwendet hast.
Energieausweistyp
Verbrauchsausweis
Gebäudetyp
Wohngebäude
Baujahr laut Energieausweis
2017
Wesentliche Energieträger
PELLET
Gültigkeit
bis 02.07.2033
Effizienzklasse
H
Endenergieverbrauch
289,93 kWh/(m²·a)
Weitere Energiedaten
Haustyp
Massivhaus
Energieträger
Pellets
Heizungsart
offener Kamin, Zentralheizung
Details
Objektbeschreibung
Dieses ansprechende Einfamilienhaus aus dem Jahr 1870 steht auf einem ca. 1.280 m² großen Grundstück.
Die Kernsanierung erfolgte im Jahr 1998.
Mit einer Wohnfläche von ca.181 m² eignet sich die Immobilie sowohl für Investoren, als auch für Familien, die ein charaktervolles Zuhause mit großzügigem Platzangebot suchen...
Ausstattung
- Baujahr um 1870
- Kernsanierung 1998
- Wohnfläche ca. 181 m²
- Carport für ein PKW + 1 Stellplatz
- Bad mit Dusche
- schön angelegter Garten mit Sitzecke & Außendusche
- vollbiologische Kläranlage
- Pelletheizung
- aktuell vermietet
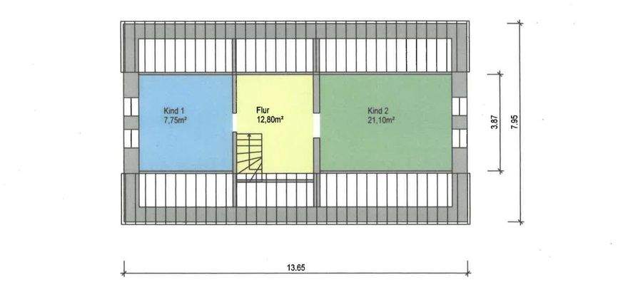
Erdgeschoss:
- Küche ca. 21,50 m²
-...
Preisinformation
1 Carportplatz
1 Stellplatz
Weitere Informationen
Sonstiges
Es liegt ein Energieverbrauchsausweis vor.
Dieser ist gültig bis 2.7.2033.
Endenergieverbrauch beträgt 289.93 kwh/(m²*a).
Wesentlicher Energieträger der Heizung ist Pelletheizung.
Das Baujahr des Objekts lt. Energieausweis ist 2017.
Die Energieeffizienzklasse ist H.
GELDWÄSCHE: Als...
Anbieter der Immobilie
VON POLL IMMOBILIEN Bautzen - BLS Immobilien GmbH
Reichenstraße 9, 02625 Bautzen
Online-ID: 2nttg54
Referenznummer: 25 326 038
Finde Angebote wie dieses
Hier geht es zu unserem Impressum, den Allgemeinen Geschäftsbedingungen, den Hinweisen zum Datenschutz und nutzungsbasierter Online-Werbung.