
Feldbusch Immobilien GmbH
Herr Anatolij Feldbusch
004 ···
Nr. anzeigenPreise & Kosten
Provision für Käufer
Provisionsfreier Verkauf
Lage
Die Lage:
Leben in Eschertshofen - naturnah, ruhig und gut angebunden
Das Neubauprojekt entsteht im idyllischen Ortsteil Eschertshofen, einem Teil der Gemeinde Pilsach bei Neumarkt i.d.OPf. - umgeben von Wiesen, Wäldern und einer sanft geschwungenen Hügellandschaft, die Ruhe und Weite vermittelt.
Ein...
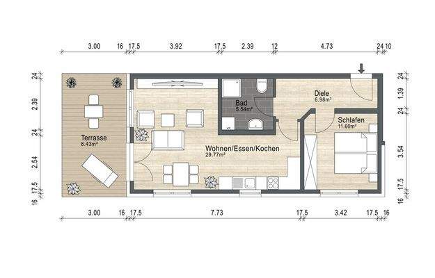
Die Wohnung
Wohnungslage
Erdgeschoss
Bezug
ab sofort
Wohnanlage
Energie & Heizung
Warum sehe ich diese Anzeige? – Du siehst diese Anzeige basierend auf Ihrer Navigation auf unserer Website und den Suchkriterien, die du verwendet hast.
Energieausweistyp
Bedarfsausweis
Gebäudetyp
Wohngebäude
Baujahr laut Energieausweis
2024
Wesentliche Energieträger
LUFTWP
Gültigkeit
bis 19.10.2034
Effizienzklasse
A+
Endenergiebedarf
22,40 kWh/(m²·a)
Weitere Energiedaten
Heizungsart
Fußbodenheizung, Luft-/Wasser-Wärmepumpe, Zentralheizung
Details
Objektbeschreibung
Ein erster Eindruck, der überzeugt - wohnen & investieren in Bestlage:
Diese moderne Neubauwohnung in Pilsach vereint alles, was anspruchsvolle Eigennutzer und vorausschauende Kapitalanleger suchen:
Eine ruhige, naturnahe Wohnlage am Golfplatz, eine hochwertige Bauweise nach KfW-55-Standard, eine durchdachte...
Ausstattung
Zahlen & Fakten:
» 6 modern geschnittene Wohnungen fu?r unzählige Glu?cksmomente
» Die Richtige dabei:
2 großzu?gige Zimmer, freundlich und hell, ca. 62 m²
» Nur ein Schritt ins Freie:
Terrasse und Gartenanteil im Erdgeschoss
» 6 großzu?gige Carports
zzgl. 15.000 €/ Stellplatz
»...
Preisinformation
1 Carportplatz, Kaufpreis: 15.000,00 EUR
Weitere Informationen
Sonstiges
Unser Angebot hat Ihr Interesse geweckt?
Wir würden uns sehr freuen, Sie bei einem persönlichen Besichtigungstermin begrüßen zu dürfen.
Bitte benutzen Sie das Kontaktformular.
Bitte haben Sie Verständnis, dass wir Ihre Anfrage nur dann beantworten können, wenn Ihre vollständigen Kontaktdaten mit Name...
Anbieter der Immobilie
Online-ID: 2ntvc59
Referenznummer: 5956
Finde Angebote wie dieses
Hier geht es zu unserem Impressum, den Allgemeinen Geschäftsbedingungen, den Hinweisen zum Datenschutz und nutzungsbasierter Online-Werbung.