

Schichtel & Partner Immobilien
Herr Nikita Millers
+49 ···
Nr. anzeigenPreise & Kosten
Provision für Käufer
5,95 % (inkl. 19,00 % MwSt.) vom Käufer
Lage
Das angebotene Zweifamilienhaus mit Erweiterungspotenzial befindet sich in bevorzugter Wohnlage von Bremen-Burgdamm, einem gewachsenen Stadtteil im Bremer Norden, der besonders durch seine ruhige Umgebung, die gute Infrastruktur und das naturnahe Wohngefühl überzeugt.
Das direkte Wohnumfeld ist geprägt von gepflegten...
Das Haus
Kategorie
Mehrfamilienhaus
Baujahr
1927
Bezug
Nach Vereinbarung
Energie & Heizung
Warum sehe ich diese Anzeige? – Du siehst diese Anzeige basierend auf Ihrer Navigation auf unserer Website und den Suchkriterien, die du verwendet hast.
Energieausweistyp
Bedarfsausweis
Gebäudetyp
Wohngebäude
Baujahr laut Energieausweis
2023
Wesentliche Energieträger
GAS
Gültigkeit
bis 25.06.2033
Endenergiebedarf
117,26 kWh/(m²·a)
Weitere Energiedaten
Energieträger
Gas
Heizungsart
Zentralheizung
Details
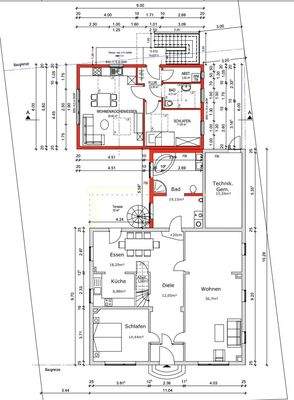
Objektbeschreibung
Dieses Angebot vereint solide Altbausubstanz mit einem Neubauprojekt: Auf einem ca. 842?m² großen Grundstück steht ein gepflegtes, freistehendes Zweifamilienhaus von ca. 1927 - ergänzt durch eine bereits genehmigte Planung für einen modernen Neubau mit drei zusätzlichen Wohneinheiten.
Eine seltene Kombination, die...
Ausstattung
- Freistehendes Zweifamilienhaus mit geplantem Neubau im Paket
- Baujahr Bestand: ca. 1927
- Geplanter Neubau: ca. 2025
- Grundstücksgröße: ca. 842?m²
- Gesamtwohnfläche nach Erweiterung: ca. 338?m²
- Bestandswohnfläche: Erdgeschoss ca. 120?m², Obergeschoss ca. 80 m²
- Neubau mit drei...
Preisinformation
Ist-Mieteinnahmen pro Jahr: 3.250,00 EUR
Weitere Informationen
Stichworte
Nutzfläche: 21,00 m², vermietbare Fläche: 338,00 m², Anzahl der Schlafzimmer: 7, Anzahl der Badezimmer: 5, Anzahl Balkone: 1, Anzahl Terrassen: 2, Anzahl der Wohneinheiten: 5
Sonstiges/Wohnen: Einliegerwohnung
Anbieter der Immobilie

Online-ID: 2ntvl56
Referenznummer: SP607C
Finde Angebote wie dieses
Hier geht es zu unserem Impressum, den Allgemeinen Geschäftsbedingungen, den Hinweisen zum Datenschutz und nutzungsbasierter Online-Werbung.