

Sparkasse Chemnitz, Immobilien, in Vertretung der LBS IMMOBILIEN GMBH Nordost
Frau Salome Frank
037 ···
Nr. anzeigenPreise & Kosten
Provision für Käufer
3,57 % inkl. MwSt.
Lage
Schönau ist ein Stadtteil im Westen von Chemnitz. An ihn grenzen die Stadtteile Rottluff, Altendorf, Kappel, Stelzendorf und Siegmar.
Durch den Stadtteil führt die B 173 (Neefestraße) sowie eine Bahnstrecke nach Hohenstein-Ernstthal und Zwickau. Die Autobahn A 72 befindet sich an der westlichen Grenze von...
Das Haus
Kategorie
Einfamilienhaus
Baujahr
1939
Energie & Heizung
Warum sehe ich diese Anzeige? – Du siehst diese Anzeige basierend auf Ihrer Navigation auf unserer Website und den Suchkriterien, die du verwendet hast.
Energieausweistyp
Bedarfsausweis
Gebäudetyp
Wohngebäude
Baujahr laut Energieausweis
1939
Wesentliche Energieträger
Gas
Gültigkeit
27.05.2025 bis 26.05.2035
Effizienzklasse
D
Endenergiebedarf
129,99 kWh/(m²·a)
Weitere Energiedaten
Haustyp
Massivhaus
Energieträger
Gas
Heizungsart
offener Kamin
Details
Objektbeschreibung
Erholen Sie sich nicht nur am Wochenende, sondern genießen Sie jeden Tag wie ein kleines bisschen Urlaub. Dieses gepflegte Einfamilienhaus steht in einem der beliebtesten Stadtteile von Chemnitz und besticht mit vielen Ausstattungsmerkmalen. Es wurde um 1939 erbaut und 2000 liebevoll saniert.
Die Aufteilung der...
Ausstattung
Individuelle Ausstattungsmerkmale:
- Außenjalousien
- Glasfaseranschluss
- überdachte Terrasse
- winterfester Aufstellpool mit separater Heizung
- Gartenhaus mit Kamin und Küche
- Werkstatt
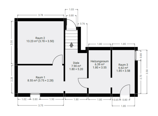
. ca.134 m² Wohnfläche
. ca. 900 m² Grundstück, vollständig eingezäunt
. zwei Kinder- oder...
Weitere Informationen
Sonstiges
Alle Angaben haben wir vom Auftraggeber erhalten. Für deren Richtigkeit können wir keine Gewähr übernehmen. Einen Zwischenverkauf behält sich der Auftraggeber/Verkäufer ausdrücklich vor.
Wir bitten um Verständnis, dass wir nur vollständige, schriftliche Anfragen (E-Mail, Fax, Brief) mit Namen, Anschrift...
Anbieter der Immobilie
Sparkasse Chemnitz, Immobilien, in Vertretung der LBS IMMOBILIEN GMBH Nordost
Bahnhofstraße 51, 09111 Chemnitz

Online-ID: 2nu9c5a
Referenznummer: 170-2883
Finde Angebote wie dieses
Hier geht es zu unserem Impressum, den Allgemeinen Geschäftsbedingungen, den Hinweisen zum Datenschutz und nutzungsbasierter Online-Werbung.