

Immobilien Kontor
Herr Flemming Rathjen
042 ···
Nr. anzeigenPreise & Kosten
Kaution
3 Nettokaltmieten
Warum sehe ich diese Anzeige? – Du siehst diese Anzeige basierend auf Ihrer Navigation auf unserer Website und den Suchkriterien, die du verwendet hast.
Lage
- Ort und Umgebung:
Scheeßel liegt im Landkreis Rotenburg (Wümme) mit etwa 7.800 Einwohnern. Die Samtgemeinde Scheeßel hat insgesamt rund 13.000 Einwohner.
- Verkehrsanbindung:
Der Ort bietet eine gute Verkehrsanbindung über die Bundesstraße B75 und die nahegelegene Autobahn A1, die schnelle Verbindungen nach Hamburg...
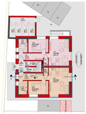
Die Wohnung
Wohnungslage
Erdgeschoss
Bezug
01.04.2026
Wohnanlage
Energie & Heizung
Warum sehe ich diese Anzeige? – Du siehst diese Anzeige basierend auf Ihrer Navigation auf unserer Website und den Suchkriterien, die du verwendet hast.
Energieausweistyp
Bedarfsausweis
Gebäudetyp
Wohngebäude
Baujahr laut Energieausweis
2023
Wesentliche Energieträger
LUFTWP
Gültigkeit
bis 03.03.2032
Effizienzklasse
A+
Endenergiebedarf
13,10 kWh/(m²·a)
Details
Objektbeschreibung
Diese einladende Erdgeschosswohnung liegt im Ortskern von Scheeßel! Sie befindet sich im hinteren Gebäude einer Wohnanlage, bestehend aus zwei Wohnhäusern, die im Jahr 2023 umfassend kernsaniert wurden.
Ab dem 01.04.2026 (ggf. auch schon früher) wird die Wohnung frei und präsentiert sich mit modernem Design sowie...
Ausstattung
Ausstattungsbeschreibung:
- KfW 40 Energieeffizienzhaus
- Luftwärmepumpe
- Fußbodenheizung
- dezentrale Lüftungsanlage
- Kunststoff-Fenster in grau - 3-Scheiben-Wärmeschutzverglasung
- Aufsatzrolladen an allen Fenstern, elektrisch betrieben
- Zimmertu?ren weiß, Drückergarnitur in Edelstahl
- Im...
Weitere Informationen
Sonstiges
Es liegt ein Energiebedarfsausweis vor.
Dieser ist gültig bis 3.3.2032.
Endenergiebedarf beträgt 13.10 kwh/(m²*a).
Wesentlicher Energieträger der Heizung ist Luft/wasser Wärmepumpe.
Das Baujahr des Objekts lt. Energieausweis ist 2023.
Die Energieeffizienzklasse ist A+.
Gerne sprechen wir mit...
Anbieter der Immobilie

Online-ID: 2nudt53
Referenznummer: IK2323-M
Finde Angebote wie dieses
Hier geht es zu unserem Impressum, den Allgemeinen Geschäftsbedingungen, den Hinweisen zum Datenschutz und nutzungsbasierter Online-Werbung.