

KHC Bauträger GmbH
Frau Janet Schrepel
037 ···
Nr. anzeigenPreise & Kosten
Provision für Käufer
provisionsfrei
Lage
Das Grundstück befindet sich in einem Neubaugebiet in Limbach-Oberfrohna. In direkter Umgebung befindet sich das Stadtzentrum und das Limbacher-Teichgebiet. Es sind Grundstücke mit der Größe von 500-700qm verfügbar.
Der Preis versteht sich inklusive Grundstück.
Unser Büro befindet sich zentral in...
Das Haus
Kategorie
Einfamilienhaus
Baujahr
2025
Energie & Heizung
Warum sehe ich diese Anzeige? – Du siehst diese Anzeige basierend auf Ihrer Navigation auf unserer Website und den Suchkriterien, die du verwendet hast.
Energieausweistyp
Bedarfsausweis
Gebäudetyp
Wohngebäude
Baujahr laut Energieausweis
2025
Gültigkeit
seit 04.01.2016
Effizienzklasse
A
Weitere Energiedaten
Heizungsart
Fußbodenheizung, Zentralheizung
Details
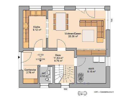
Objektbeschreibung
Das Haus Loop ist ein Highlight für die ganze Familie. Es überzeugt mit sehr guter Wohnflächenausnutzung und einem schicken Design.
Große Fenster lassen viel Licht in den Innenraum, der großzügige Wohn- und Essbereich erhält eine markante Eckverglasung und bietet direkten Zugang in den eigenen Garten. An den...
Ausstattung
4 Zimmer, Küche, Diele, WC, Flur, Bad, Hauswirtschaftsraum, Garderobe
Das gezeigte Traumhaus im Überblick:
+ Schlüsselfertiges Massivhaus im Sinne der Ausstattungsbeschreibung "Easy"
+ Inklusive Bodenplatte
Beste Markenausstattung in jedem Kern-Haus:
+ Zimmermannsmäßiger Dachstuhl aus...
Weitere Informationen
Sonstiges
Bei Kern-Haus Chemnitz kümmern sich 10 Beschäftigte um das gute Gelingen Ihres Traumhauses. Alle Leistungen werden von unseren Mitarbeitern vor Ort erbracht - von der Beratung, über die Planung bis hin zur Bauleitung. Die Bauleistungen an Ihrem Kern-Haus führen regionale Bauunternehmen fachgerecht aus. Kurze Wege...
Anbieter der Immobilie
KHC Bauträger GmbH
Albert Einstein Str. 4, 09212 Limbach-Oberfrohna

Online-ID: 2nufh58
Referenznummer: KH 16_38
Finde Angebote wie dieses
Hier geht es zu unserem Impressum, den Allgemeinen Geschäftsbedingungen, den Hinweisen zum Datenschutz und nutzungsbasierter Online-Werbung.