
McMakler GmbH
Ihr McMakler Team
080 ···
Nr. anzeigenPreise & Kosten
Provision für Käufer
Die Provision i.H.v. 3,57 % inkl. MwSt. ist mit Kaufvertragsbeurkundung fällig, sofern der Verkaufspreis über 83.000,00 € liegt.
Liegt der Verkaufspreis dagegen bei/unter 83. Weitere Informationen siehe Provisionshinweis.
Lage
Lage: Frische Luft dank Feldrandlage - ideal für einen naturnahen Lebensstil
Bildung und Betreuung: Top-Lage: Schule und Kindergarten in max. 800 m Entfernung
Nahversorgung: Anlaufstellen schnell erreicht: Supermarkt, Apotheke und Postfiliale in max. ca. 800 m
Anbindung: Gut erreichbar: Bushaltestelle, Bahnhof und...
Das Renditeobjekt
Baujahr
1978
Bezug
nach Absprache
Energie & Heizung
Warum sehe ich diese Anzeige? – Du siehst diese Anzeige basierend auf Ihrer Navigation auf unserer Website und den Suchkriterien, die du verwendet hast.
Energieausweistyp
Verbrauchsausweis
Gebäudetyp
Wohngebäude
Baujahr laut Energieausweis
1978
Wesentliche Energieträger
Gas
Effizienzklasse
B
Endenergieverbrauch
57,00 kWh/(m²·a)
Weitere Energiedaten
Energieträger
Gas
Heizungsart
Zentralheizung
Details
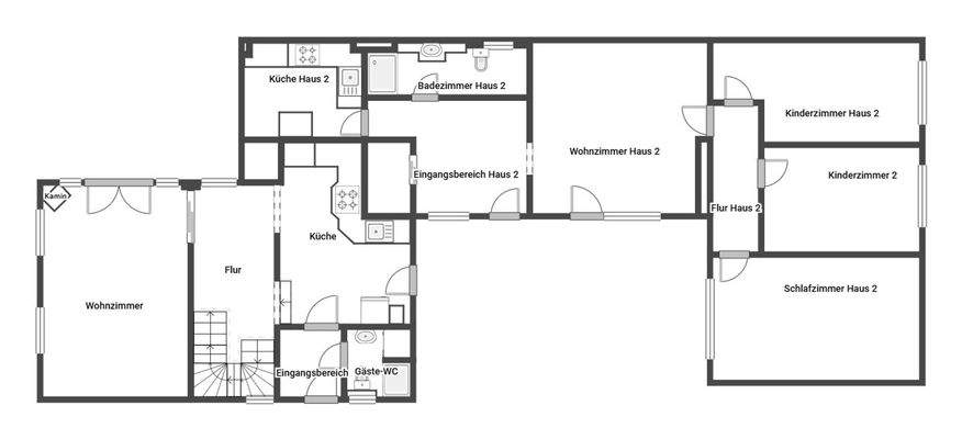
Objektbeschreibung
Objektnr: 1070200
Ihre Suche nach dem idealen Zuhause findet hier ein Ende.
Diese Immobilie bietet ein außergewöhnlich flexibles Wohnkonzept und richtet sich ideal an Familien und Mehrgenerationenhaushalte. In ruhiger Feldrandlage von Norderstedt verbindet das Objekt naturnahes Wohnen mit vielseitigen...
Ausstattung
+ Zwei separat zugängliche Wohneinheiten
+ Fußbodenheizung im EG des Haupthauses
+ Entspannung im Freien: Der große Garten inkl. Teich auf ca. 890 m² übersichtlichem Grund lädt zum Verweilen ein
+ Stellplatzmöglichkeiten in Form von 2 Carports und einer Garage
Weitere Informationen
Provisionshinweis
Die Provision i.H.v. 3,57 % inkl. MwSt. ist mit Kaufvertragsbeurkundung fällig, sofern der Verkaufspreis über 83.000,00 € liegt.
Liegt der Verkaufspreis dagegen bei/unter 83.000,00 €, ist die fest vereinbarte Mindestprovision i.H.v. mind. 5.950,00 € inkl. MwSt. mit Kaufvertragsbeurkundung fällig...
Anbieter der Immobilie
McMakler GmbH
Am Postbahnhof 17, 10243 Berlin
Online-ID: 2nv3q59
Referenznummer: de071048c9
Finde Angebote wie dieses
Hier geht es zu unserem Impressum, den Allgemeinen Geschäftsbedingungen, den Hinweisen zum Datenschutz und nutzungsbasierter Online-Werbung.