team19 Immobilien GmbH

Herr Christoph Kolar

Hell und modern! Hochwertige 2-Zimmer Wohnung im 5. OG nahe U6, Millennium City und Donau!

€ 975
Gesamtmiete inkl. BK
41,87 m²
Wohnfläche ca.
2
Zimmer

Der Anbieter dieses Objekts hat gegenüber der AVIV Germany GmbH als Betreiber dieses Online-Marktplatzes erklärt, nicht als Unternehmer im Sinne des § 1 KSchG zu handeln. Die im Verbraucherschutzrecht der Union verankerten Verbraucherrechte (insbesondere Informationspflichten und Rücktritts- bzw. Widerrufsrechte) finden auf den Vertrag zwischen dem Anbieter des Objekts und Ihnen (dem Interessenten) keine Anwendung.

Gewerblicher Anbieter

Der Anbieter dieses Objekts hat gegenüber der AVIV Germany GmbH als Betreiber dieses Online-Marktplatzes erklärt, als Unternehmer im Sinne des § 1 KSchG zu handeln.

AdresseEngerthstraße 102
1200 Wien 
(Brigittenau)
Auf Karte ansehen

Preise & Kosten

Gesamtmiete

inkl. Betriebskosten

€ 975
Nettokaltmiete € 796,23 Betriebskosten € 90,14

Kaution

3 Bruttomonatsmieten

Provision für Mieter

Gemäß Erstauftraggeberprinzip bezahlt der Abgeber die Provision.

Lage

Millennium Tower, Neue Donau, Allerheiligenpark, Handelskai U6

Die Wohnung

Wohnungslage

5. Geschoss

Bezug

01.05.2026

  • Bad mit Wanne
  • Balkon
  • Einbauküche, offene Küche
  • barrierefrei
  • Böden: Fliesenboden, Parkett
  • Ausstattung: neuwertig
  • voll klimatisiert

Wohnanlage

  • Baujahr: 2018
  • Zustand: Neubau
  • Personenaufzug

Energie & Heizung

Heizwärmebedarf (HWB)

B

29,77 kWh/(m²·a)

Gesamtenergieeffizienz (fGEE)

A

0,76

Weitere Energiedaten

Energieträger

Fernwärme

Heizungsart

Fußbodenheizung

Details

Objektbeschreibung

Engerthstraße 102- modernes Wohnen in Brigittenau nahe U6 und S-Bahn Handelskai, Neue Donau und Millennium City!

 

In nur 5 Gehminuten entfernt gelegen von der U6 Station Handelskai, sowie dem dortigen Shopping- und Entertainmentzentrum Millennium City und auch zahlreichen S-Bahn Stationen wurde erst 2018...

Mehr anzeigen

Preisinformation

Nettokaltmiete: 796,23 EUR

Weitere Informationen

Stichworte
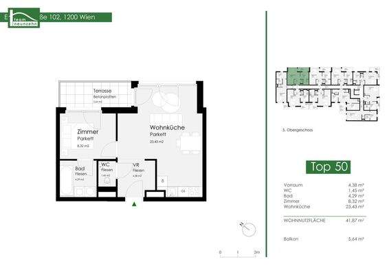
Nord-Ost-Balkon/Terrasse, Fahrradraum, Nutzfläche: 47,51 m², Gesamtfläche: 47,51 m², Freifläche: 5,64 m², Anzahl der Badezimmer: 1, Anzahl der separaten WCs: 1, Anzahl Balkone: 1, Balkon-Terrassen-Fläche: 5,64 m², Bundesland: Wien, 9 Etagen, Wohnungsnr.: 50

Anbieter der Immobilie

Partner

team19 Immobilien GmbH

im Durchschnitt  4,20  Sterne
(bei 2 Bewertungen)

Handelskai 94-96/44. Stock, 1200 BRIGITTENAU

user

Herr Christoph Kolar

Dein Ansprechpartner

Anbieter-Website Anbieter-Profil Anbieter-Impressum

Online-ID: 2nv9856

Referenznummer: OBGC20260112115208157f035b12e6c

Finde Angebote wie dieses

imageimageimage

Hier geht es zu unserem Impressum, den Allgemeinen Geschäftsbedingungen, den Hinweisen zum Datenschutz und nutzungsbasierter Online-Werbung.