GSU XII Development GmbH

Frau Birte Großmann

bezugsfertig: Neubau Stadthaus mit Terrassen und Garten

€ 998.000
Kaufpreis
123 m²
Wohnfläche ca.
4
Zimmer
k.A.
Grundstücksfl.

Der Anbieter dieses Objekts hat gegenüber der AVIV Germany GmbH als Betreiber dieses Online-Marktplatzes erklärt, nicht als Unternehmer im Sinne des § 1 KSchG zu handeln. Die im Verbraucherschutzrecht der Union verankerten Verbraucherrechte (insbesondere Informationspflichten und Rücktritts- bzw. Widerrufsrechte) finden auf den Vertrag zwischen dem Anbieter des Objekts und Ihnen (dem Interessenten) keine Anwendung.

Provisionsfrei
Gewerblicher Anbieter

Der Anbieter dieses Objekts hat gegenüber der AVIV Germany GmbH als Betreiber dieses Online-Marktplatzes erklärt, als Unternehmer im Sinne des § 1 KSchG zu handeln.

AdresseBerliner Allee 94
13088 Berlin 
(Weißensee)
Auf Karte ansehen

Preise & Kosten

Kaufpreis € 998.000

Provision für Käufer

provisionsfrei

Lage

Im Herzen der ehemaligen Filmstadt Weißensee entfaltet sich eine lebendige Kiezkultur, die das authentische Berliner Lebensgefühl widerspiegelt. An dem Punkt, wo das charmante Komponistenviertel, der idyllische Weiße See und der pulsierende Antonplatz aufeinander-treffen, finden Sie eine ruhige Oase "Berliner Allee 94" - hier...

Mehr anzeigen

Das Haus

Kategorie

Doppelhaushälfte

Geschosse

3 Geschosse

Baujahr

2024

Bezug

März 2026

Derzeitige Nutzung

frei

  • Zustand: Erstbezug, Neubau
  • Terrasse, Garten, Gartenanteil
  • Bad mit Fenster, Wanne und Dusche, Gäste-WC
  • offene Küche
  • Böden: Fliesenboden, Parkett
  • Fenster: Kunststofffenster
  • Weitere Räume: Abstellraum

Energie & Heizung

A+
A
B
C
D
E
F
G
H
0 25 50 75 100 125 150 175 200 225 250 +

Energieausweistyp

Bedarfsausweis

Gebäudetyp

Wohngebäude

Effizienzklasse

A

Endenergiebedarf

44,90 kWh/(m²·a)

Weitere Energiedaten

Energieträger

Gas

Heizungsart

Fußbodenheizung, Luft-/Wasser-Wärmepumpe

Details

Objektbeschreibung

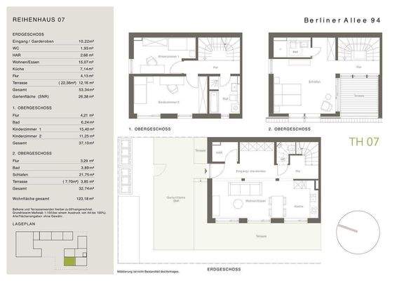
Das im Innenhof gelegene bezugsfertige Stadthaus 7 verfügt über 123 qm Wohnfläche zuzüglich 26qm Gartenfläche. Im EG befinden sich ein großzügiger Eingangsbereich, ein Gäste-WC, der HWR und der Koch-/Ess-/Wohnbereich. Im 1.OG befinden sich zwei Schlaf-/Kinder/Arbeitzimmer und das Tageslicht-Wannebad; Im 2.OG das Duschbad...

Mehr anzeigen

Ausstattung

Die Ausstattung lässt keine Wünsche offen: Fußbodenheizung, hochwertiges Eichenparkett, zeitlose rutschhemmende Fliesen, prämierte Badkeramik gehören in der Berliner Allee 94 zum Standard und sorgen für eine behagliche Atmosphäre, welche Stil, Qualität und Komfort harmonisch vereint.

Moderne Haustechnik vereint Komfort...

Mehr anzeigen

Weitere Informationen

Energiequelle:
Hybridheizung

Stichworte
Versorgung: Städtische Wasserversorgung, Städtische Stromversorgung

Dokumente

file_pdfRH07-Reihenhaus Grundriss.pdfangle_right

Anbieter der Immobilie

Partner

GSU XII Development GmbH

Greifswalder Straße 200, 10405 Pankow

user

Frau Birte Großmann

Dein Ansprechpartner

Anbieter-Website Anbieter-Profil Anbieter-Impressum

Online-ID: 2nv9g5a

Finde Angebote wie dieses

imageimageimage

Hier geht es zu unserem Impressum, den Allgemeinen Geschäftsbedingungen, den Hinweisen zum Datenschutz und nutzungsbasierter Online-Werbung.