
ImmoNetzwerk GmbH
Herr Stefan Stack
017 ···
Nr. anzeigenPreise & Kosten
Provision für Käufer
2.38% (inkl. MwSt.) inkl. MwSt.
Lage
Lage
Langerwehe Luchem glänzt durch eine hervorragende Infrastruktur und Anbindung. Alle Geschäfte und Dienstleistungen des täglichen Bedarfes finden Sie in unmittelbarer Nähe. Die Autobahn A4 bietet Ihnen eine sehr gute Verkehrsanbindung nach Aachen und Köln.
Darüber hinaus verfügt Langerwehe über einen Bahnhof...
Das Haus
Kategorie
Einfamilienhaus
Baujahr
1982
Energie & Heizung
Warum sehe ich diese Anzeige? – Du siehst diese Anzeige basierend auf Ihrer Navigation auf unserer Website und den Suchkriterien, die du verwendet hast.
Energieausweistyp
Verbrauchsausweis
Gebäudetyp
Wohngebäude
Baujahr laut Energieausweis
1997
Wesentliche Energieträger
GAS
Gültigkeit
bis 13.01.2034
Effizienzklasse
D
Endenergieverbrauch
123,00 kWh/(m²·a)
Weitere Energiedaten
Haustyp
Massivhaus
Energieträger
Gas
Heizungsart
offener Kamin, Zentralheizung
Details
Objektbeschreibung
Charmante Doppelhaushälfte zur Gestaltung Ihres Familiendomizils
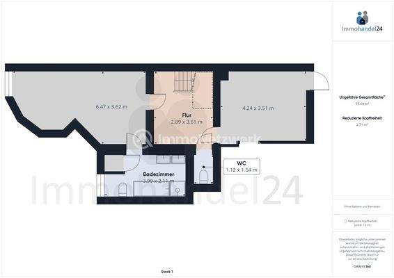
Willkommen in Ihrem neuen Familienheim! Diese großzügige, vollunterkellerte Doppelhaushälfte (DHH) bietet mit ca. 137 m² Wohnfläche und einer Grundstücksgröße von ca. 530 m² reichlich Platz für Ihre Familienmomente.
Das 1982 erbaute Objekt wird von...
Ausstattung
Ausstattungsmerkmale / Highlights :
* Baujahr 1982
* 137 m² Wohnfläche
* großes Büro im Souterrain möglich
* bis zu 4 Stellplätze direkt am Haus
* große Garage
* Gäste WC im Souterrain
* 2 Schlafzimmer im 1. OG
* Kaminofen vorhanden
* sehr gepflegtes Wohnviertel
* nette Nachbarschaft
*...
Weitere Informationen
Sonstiges
virtueller Rundgang :
https://tour.giraffe360.com/695fc7d33a9e44fc9874ae021d98e78e/
Stichworte
Anzahl der Schlafzimmer: 3, Anzahl der Badezimmer: 2, Anzahl Balkone: 1, Anzahl Terrassen: 1, Bundesland: Nordrhein-Westfalen, 2 Etagen
Anbieter der Immobilie
ImmoNetzwerk GmbH
Giesebrechtstraße 10, 10629 Berlin
Online-ID: 2nvac5c
Referenznummer: StSt2437
Finde Angebote wie dieses
Hier geht es zu unserem Impressum, den Allgemeinen Geschäftsbedingungen, den Hinweisen zum Datenschutz und nutzungsbasierter Online-Werbung.