

IFC Immobiliengesellschaft mbH
Herr Paul-Ludwig Blümel
034 ···
Nr. anzeigenPreise & Kosten
Provision für Käufer
Die Provision beträgt 3,5 % vom Kaufpreis (zzgl. der geltenden MwSt.).
Das Haus
Kategorie
Einfamilienhaus
Geschosse
2 Geschosse
Baujahr
1983
Energie & Heizung
Warum sehe ich diese Anzeige? – Du siehst diese Anzeige basierend auf Ihrer Navigation auf unserer Website und den Suchkriterien, die du verwendet hast.
Weitere Energiedaten
Energieträger
Öl
Details
Objektbeschreibung
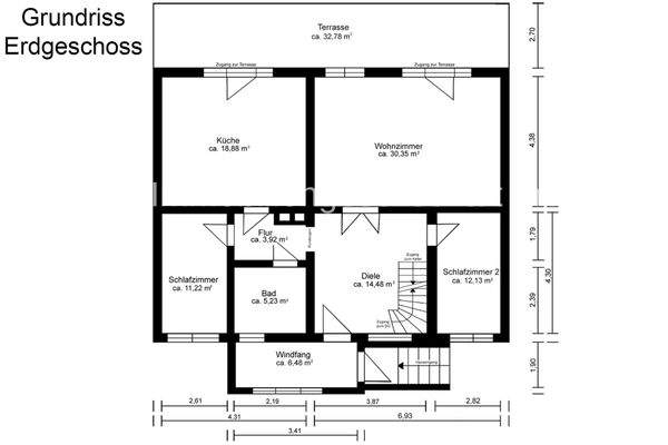
Erdgeschoss:
Wohnzimmer und Küche mit Zugang zur Terrasse,
2 Schlafzimmer, Bad, Diele, Flur, Windfang
Dachgeschoss:
Schlafzimmer, 2 ausbaubare Zimmer davon 1 Zimmer mit Zugang zur Dachspitze, Gäste-WC, Flur
Dachspitze:
für Abstellzwecke vorhanden
Unter- / Kellergeschoss:
vollständig...
Ausstattung
Sanierung
Dach:
Zwischendecke und Giebelseite gedämmt
ca. 2018 - 2-fach mit Schindeln gedeckt
Fassade:
ca. 1983 - geputzt
ca. 2015 - gestrichen
Fenster:
ca. 1997 - 2-fach Verglasung - Kunststoff (außen braun/ innen weiß bzw. braun) mit Jalousien - teilweise elektrisch sowie...
Weitere Informationen
Extras:
- Kaminanschluss im Wohnzimmer möglich
- Carport und Tiefgarage vorhanden
- Drainage mit Bodenentwässerung in die Klärgrube
Erschließung:
Strom, Wasser, Öl, Kanalisation,
SAT-Anlage, Brunnenanschluss, Telefon, Internet
Sonstiges:
Um der EnEV § 17 genüge zutun, werden wir bei...
Dokumente
Anbieter der Immobilie

Online-ID: 2nvel5a
Referenznummer: 2043
Finde Angebote wie dieses
Hier geht es zu unserem Impressum, den Allgemeinen Geschäftsbedingungen, den Hinweisen zum Datenschutz und nutzungsbasierter Online-Werbung.