

Tauschwohnung GmbH
Herr John Weinert
+49 ···
Nr. anzeigenPreise & Kosten
Zahlungsfähigkeit nachweisen - KSV1870 InfoPass zur Besichtigung mitnehmen info
Warum sehe ich diese Anzeige? – Du siehst diese Anzeige basierend auf Ihrer Navigation auf unserer Website und den Suchkriterien, die du verwendet hast.
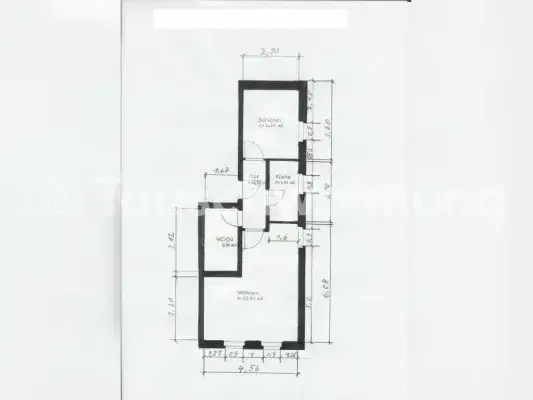
Die Wohnung
Wohnungslage
1. Geschoss
Details
Objektbeschreibung
Es handelt es sich hierbei um ein Tauschangebot. (Anbieter-ID: 329799)
Tausche meine schöne 2 Raum Wohnung :)
Suche 2 - 3 Raum Wohnung, maximal 500 kalt (maximal 700 warm). Unbedingt mit Balkon und vorzugsweise nicht an der großen Straße :)
Diese Anzeige wurde von einem Nutzer...
Anbieter der Immobilie

Online-ID: 2nvf852
Referenznummer: 329799
Finde Angebote wie dieses
Hier geht es zu unserem Impressum, den Allgemeinen Geschäftsbedingungen, den Hinweisen zum Datenschutz und nutzungsbasierter Online-Werbung.