
WAG Wohnungsanlagen Gesellschaft m.b.H.
Team Salzburg
+43 ···
Nr. anzeigenPreise & Kosten
Provision für Käufer
Bitte beachte, das Angebot kann bei Vertragsabschluss die Zahlung einer Provision beinhalten. Weitere Informationen erhältst Du vom Anbieter.
Lage
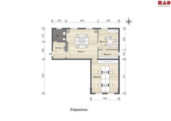
Das Objekt (Büroräumlichkeiten im Ausmaß von ca. 82,23 m²) befindet sich in Salzburg-Lehen, in der Schießstattstraße 21, im Erdgeschoss.
Büro-/Praxisfläche
Bezug
Sofort
Geschoss
Erdgeschoss
Energie & Heizung
Warum sehe ich diese Anzeige? – Du siehst diese Anzeige basierend auf Ihrer Navigation auf unserer Website und den Suchkriterien, die du verwendet hast.
Heizwärmebedarf (HWB)
57,00 kWh/(m²·a)
Gesamtenergieeffizienz (fGEE)
1,12
Weitere Energiedaten
Energieträger
Fernwärme
Heizungsart
Zentralheizung
Details
Objektbeschreibung
Adresse: Schießstattstraße 21, 5020 Salzburg
Nutzfläche: 82,83?m²
Lage: Erdgeschoss
Kaufpreis: €?350.000,-- (zzgl. Kaufnebenkosten)
Widmung: Büro (Umnutzung auf Wohnung möglich)
Verfügbarkeit: kurzfristig / nach Vereinbarung
-------------------------
KURZBESCHREIBUNG
Diese attraktive...
Weitere Informationen
Stichworte
Anzahl der Badezimmer: 1, Kellerfläche: 3,00 m², Bundesland: Salzburg, 5 Etagen, Wohnungsnr.: IV
Anbieter der Immobilie
WAG Wohnungsanlagen Gesellschaft m.b.H.
Mörikeweg 6, 4025 LINZ
Online-ID: 2nvjx54
Referenznummer: OBGC202507210834545875173de52fb
Finde Angebote wie dieses
Hier geht es zu unserem Impressum, den Allgemeinen Geschäftsbedingungen, den Hinweisen zum Datenschutz und nutzungsbasierter Online-Werbung.