
Hartmann Immobilien
Herr Markus Hartmann
036 ···
Nr. anzeigenPreise & Kosten
Provision für Käufer
Maklercourtage:
5,95% des Gesamtkaufpreises zzgl.ges.MwSt.,
fällig mit Unterschrift des notariellen Kaufvertrages.
Die Ladenfläche
Kategorie
Laden
Bezug
Die Einheit ist vermietet
Derzeitige Nutzung
vermietet
Erdgeschoss
Energie & Heizung
Warum sehe ich diese Anzeige? – Du siehst diese Anzeige basierend auf Ihrer Navigation auf unserer Website und den Suchkriterien, die du verwendet hast.
Energieausweistyp
Verbrauchsausweis
Gebäudetyp
Wohngebäude
Baujahr laut Energieausweis
1997
Wesentliche Energieträger
Erdgas
Gültigkeit
25.10.2018 bis 25.10.2028
Effizienzklasse
C
Endenergieverbrauch
76,60 kWh/(m²·a)
Weitere Energiedaten
Energieträger
Elektro, Gas
Heizungsart
Zentralheizung
Details
Objektbeschreibung
Kurzbeschreibung
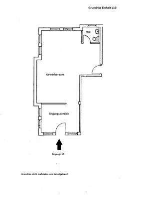
Im EG einer Eigentumswohnanlage mit Wohnungen und verschiedenen gewerblichen Einrichtungen in einem schönen Wohngebiet steht hier eine ca. 57,85 m² große Gewerbefläche zum Verkauf.
Die Räumlichkeiten sind gefliest und weiß gestrichen, zur Straßenfront gibt es zwei Schaufenster.
Im Kaufpreis...
Weitere Informationen
Sonstiges
Da die Räumlichkeiten vermietet sind, stehen uns aus Diskretionsgründen leider keine Fotos zur Verfügung.
Bei Interesse vereinbaren Sie gerne einen Besichtigungstermin mit uns !
HINWEIS
Wir bitten um Verständnis dass Anfragen per email ohne Angabe des Namens und einer aktuellen Telefonnummer aus...
Anbieter der Immobilie
Hartmann Immobilien
Schwarzburger Chaussee 78, 07407 Rudolstadt
Online-ID: 2nvte5a
Referenznummer: L10
Finde Angebote wie dieses
Hier geht es zu unserem Impressum, den Allgemeinen Geschäftsbedingungen, den Hinweisen zum Datenschutz und nutzungsbasierter Online-Werbung.