
ohne-makler.net - Immobilien selbst vermarkten
Privat vom Eigentümer
Kontaktiere den Anbieter schriftlich, es ist keine Telefonnummer hinterlegt.
Preise & Kosten
Provision für Käufer
provisionsfrei
Lage
Die Immobilie befindet sich in einer ruhigen Anlieger- und Spielstraße in sehr beliebter Wohnlage in Bad Vilbel in fußläufiger Nähe zur Europäischen Schule Rhein-Main. Für Mobilität ist auch dank der in der Nähe verkehrenden Buslinie 64 und des S-Bahn-Anschlusses nach Frankfurt und Friedberg gesorgt. In direkter Umgebung...
Das Haus
Kategorie
Doppelhaushälfte
Baujahr
2000
Bezug
nach Absprache
Energie & Heizung
Warum sehe ich diese Anzeige? – Du siehst diese Anzeige basierend auf Ihrer Navigation auf unserer Website und den Suchkriterien, die du verwendet hast.
Energieausweistyp
Verbrauchsausweis
Gebäudetyp
Wohngebäude
Effizienzklasse
B
Endenergieverbrauch
74,00 kWh/(m²·a)
Weitere Energiedaten
Energieträger
Gas
Heizungsart
Fußbodenheizung, offener Kamin
Details
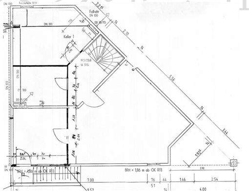
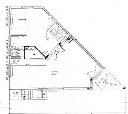
Objektbeschreibung
Dieses repräsentative Stadthaus wurde im Jahr 2000 in hochwertiger Massivbauweise auf einem 328 m² großen und sonnigen Süd-/West Grundstück errichtet. Ihre Familie wird sich auf der großzügig aufgeteilten 200 m² Wohnfläche sehr wohl fühlen.
Das Erdgeschoss ist offen gestaltet und beherbergt eine großzügige und moderne...
Ausstattung
Balkon, Terrasse, Wintergarten, Garten, Keller, Vollbad, Duschbad, Einbauküche, Gäste-WC, Kamin, Parkett, Fliesen
Bemerkungen:
Highlights auf einen Blick
- Großzügiger Grundriss mit hellen, freundlichen Räumen
- Beheizter Wintergarten - ganzjährig nutzbar
- Gemütlicher Kachel-Eckkamin für stilvolles...
Preisinformation
3 Stellplätze
1 Garagenstellplatz
Weitere Informationen
Sonstiges
Heizungsart: Fußbodenheizung
Energieträger: Gas
Übergabe sofort oder nach Vereinbarung möglich
Makleranfragen nicht erwünscht. Nach § 7 UWG sind unaufgeforderte Kontaktaufnahmen durch Makler ohne ausdrückliche Einwilligung des Empfängers verboten!
ohne-makler (OM) ist weder Anbieter noch...
Dokumente
Anbieter der Immobilie
ohne-makler.net - Immobilien selbst vermarkten
Humboldtstr. 25 A, 21509 Glinde
Privat vom Eigentümer
Dein Ansprechpartner
Kontaktiere den Anbieter schriftlich, es ist keine Telefonnummer hinterlegt.
Online-ID: 2nvyd59
Referenznummer: 281205
Finde Angebote wie dieses
Hier geht es zu unserem Impressum, den Allgemeinen Geschäftsbedingungen, den Hinweisen zum Datenschutz und nutzungsbasierter Online-Werbung.