Bien-Zenker GmbH Musterhaus

Herrn Kevin Baur

Traumhaftes Grundstück - Doppelhaushälfte + Keller in Immenhausen - Bestpreisgarantie bei Bien-Zenker

€ 625.000
Kaufpreis
150 m²
Wohnfläche ca.
5
Zimmer
320 m²
Grundstücksfl. ca.

Der Anbieter dieses Objekts hat gegenüber der AVIV Germany GmbH als Betreiber dieses Online-Marktplatzes erklärt, nicht als Unternehmer im Sinne des § 1 KSchG zu handeln. Die im Verbraucherschutzrecht der Union verankerten Verbraucherrechte (insbesondere Informationspflichten und Rücktritts- bzw. Widerrufsrechte) finden auf den Vertrag zwischen dem Anbieter des Objekts und Ihnen (dem Interessenten) keine Anwendung.

Gewerblicher Anbieter

Der Anbieter dieses Objekts hat gegenüber der AVIV Germany GmbH als Betreiber dieses Online-Marktplatzes erklärt, als Unternehmer im Sinne des § 1 KSchG zu handeln.

AdresseStraße nicht freigegeben
72127 Immenhausen 
Auf Karte ansehen

Preise & Kosten

Kaufpreis € 625.000

Provision für Käufer

Bei Abschluss eines Kaufvertrages wird eine Vermittlungs-/ Nachweisprovision in Höhe von 5,8 % inklusive 19 % Mehrwertsteuer auf den Kaufpreis des Grundstücks vom Käufer fällig.

Lage

Immenhausen ist ein Teilort der Gemeinde Kusterdingen im Landkreis Tübingen in Baden-Württemberg. Der Ort liegt auf der Härten-Hochebene östlich von Tübingen und bietet eine ruhige, dörflich geprägte Wohnlage mit guter Anbindung an Tübingen, Reutlingen und die B28. Die Umgebung ist landwirtschaftlich geprägt, mit viel Natur...

Mehr anzeigen

Das Haus

Kategorie

Einfamilienhaus

  • Zustand: projektiert

Details

Objektbeschreibung

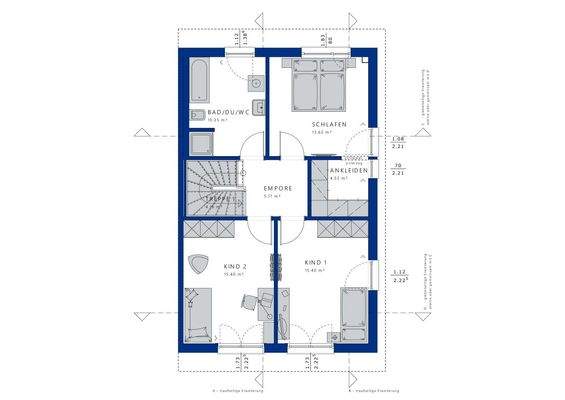
Doppelhaushälfte "Celebration 139" mit Keller und optionaler Einliegerwohnung

Die Häuser können im Grundriss und in der Größe individuell angepasst werden - schnell sein lohnt sich!

Individuelle Architektur, modernes Design und ein zeitgemäßes Raumkonzept - die Doppelhaushälfte Celebration 139 verbindet auf...

Mehr anzeigen

Ausstattung

Das Haus wird in bekannter Bien-Zenker Qualität schlüsselfertig angeboten. Eigenleistungen wie Böden, Wände etc. können selbst übernommen werden, um Kosten zu sparen. Das Haus kann noch individuell verändert werden.

Im Preis enthalten:

* Effizienzhaus 40 plus optional mit QNG Zertifikat
* Satteldach mit 25°...

Mehr anzeigen

Weitere Informationen

Sonstiges
Wir schätzen Ihr Interesse an unserem Grundstücksangebot und möchten darauf hinweisen, dass wir aus verschiedenen Gründen die genaue Adresse des Grundstücks erst in einem persönlichen Gespräch bekannt geben können. Dies dient sowohl Ihrem als auch unserem Schutz, um sicherzustellen, dass wir Ihre Anfrage...

Mehr anzeigen

Anbieter der Immobilie

Bien-Zenker GmbH Musterhaus

Römerstraße 157, 72793 Pfullingen

user

Herrn Kevin Baur

Dein Ansprechpartner

Anbieter-Website Anbieter-Profil Anbieter-Impressum

Online-ID: 2nw5452

Referenznummer: 12688-1661

Finde Angebote wie dieses

imageimageimage

Hier geht es zu unserem Impressum, den Allgemeinen Geschäftsbedingungen, den Hinweisen zum Datenschutz und nutzungsbasierter Online-Werbung.