

Immobilienwelt Prill
Frau Pia Prill
015 ···
Nr. anzeigenPreise & Kosten
Provision für Käufer
3,57%
Das Haus
Kategorie
Einfamilienhaus
Baujahr
1996
Bezug
sofort
Derzeitige Nutzung
frei
Energie & Heizung
Warum sehe ich diese Anzeige? – Du siehst diese Anzeige basierend auf Ihrer Navigation auf unserer Website und den Suchkriterien, die du verwendet hast.
Details
Objektbeschreibung
OBJEKTBESCHREIBUNG:
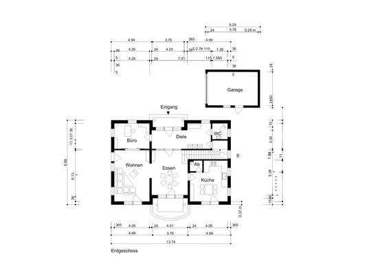
Dieses freistehende Einfamilienhaus befindet sich in ruhiger und attraktiver Wohnlage von Horhausen, einem Ortsteil der Gemeinde Theres, zwischen Schweinfurt und Haßfurt. Das im Jahr 1996 errichtete Haus überzeugt durch seine hochwertige Ausstattung, eine großzügige Raumaufteilung sowie eine offene...
Anbieter der Immobilie

Online-ID: 2nwby57
Finde Angebote wie dieses
Hier geht es zu unserem Impressum, den Allgemeinen Geschäftsbedingungen, den Hinweisen zum Datenschutz und nutzungsbasierter Online-Werbung.