
HB-HB-Immobilien
Herr Charles Hyde-Blake
004 ···
Nr. anzeigenPreise & Kosten
Provision für Käufer
3,57 % (inkl. 19 % MwSt.) vom beurkundeten Kaufpreis, jeweils vom Käufer und Verkäufer
Lage
Die Immobilie befindet sich im Bremer Stadtteil Gete, einer ruhigen und gefragten Wohnlage in Schwachhausen.
Das Umfeld ist geprägt von gepflegten Wohnhäusern, grünen Straßen und einer guten Nachbarschaft. Einkaufsmöglichkeiten, Supermärkte, Bäckereien und Apotheken sind fußläufig erreichbar. Auch Kindergärten und...
Das Haus
Kategorie
Reihenendhaus
Baujahr
1928
Bezug
gemäß Vereinbarung
Energie & Heizung
Warum sehe ich diese Anzeige? – Du siehst diese Anzeige basierend auf Ihrer Navigation auf unserer Website und den Suchkriterien, die du verwendet hast.
Energieausweistyp
Bedarfsausweis
Gebäudetyp
Wohngebäude
Baujahr laut Energieausweis
2014
Wesentliche Energieträger
OEL
Gültigkeit
bis 11.07.2025
Effizienzklasse
H
Endenergiebedarf
261,30 kWh/(m²·a)
Weitere Energiedaten
Energieträger
Öl
Details
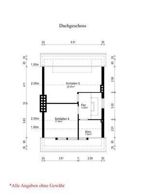
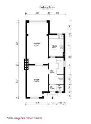
Objektbeschreibung
Dieses Reihenendhaus wurde im Jahre 1928 in Massivbauweise errichtet.
Durch den Eingangsbereich gelangt man über den zentralen Flur in den großzügigen Wohn- und Essbereich, der den Mittelpunkt des Erdgeschosses bildet. Beide Räume sind separat über zwei Zimmertüren zugänglich und können bei Bedarf durch eine...
Ausstattung
Exemplarisch weisen wir auf folgende Ausstattungsdetails hin:
7 Zimmer
Küche mit EBK
Tageslicht Vollbad
Gäste-WC
Betonpfannen Dacheindeckung aus ca. 1992
Öl-Heizung mit WW-Aufbereitung ca. 2014
Vollkeller
Weitere Informationen
Sonstiges
Die Immobilie weist am rückwärtigen Teil des Gebäudes im Innen- und Außenbereich erhebliche Rissbildung in der Fassade auf. Ein Kostenvoranschlag für Gründungssanierung (Pfahlgründung) eines namhaften Fachbetriebes liegt vor und beläuft sich auf rund € 55.000,00 (inkl. 19% MwSt.). Das detaillierte Angebot stellen...
Anbieter der Immobilie
HB-HB-Immobilien
Schwachhauser Heerstr. 54A, 28209 Bremen
Online-ID: 2nwlc5a
Referenznummer: CHB-26-01-0000405
Finde Angebote wie dieses
Hier geht es zu unserem Impressum, den Allgemeinen Geschäftsbedingungen, den Hinweisen zum Datenschutz und nutzungsbasierter Online-Werbung.