
Klaus Schmidt Immobilien
Herr Klaus Schmidt
066 ···
Nr. anzeigenPreise & Kosten
Kaution
1.000 €
Warum sehe ich diese Anzeige? – Du siehst diese Anzeige basierend auf Ihrer Navigation auf unserer Website und den Suchkriterien, die du verwendet hast.
Lage
Der alte Bahnhof liegt in Randlage von Oberaula. Kindergarten, Grundschule und Einkaufsmöglichkeiten sind im Ort vorhanden.
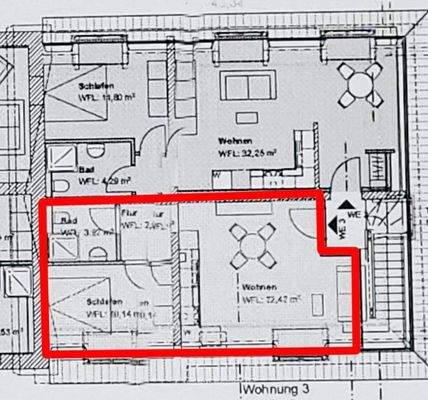
Die Wohnung
Bezug
sofort
Wohnanlage
Energie & Heizung
Warum sehe ich diese Anzeige? – Du siehst diese Anzeige basierend auf Ihrer Navigation auf unserer Website und den Suchkriterien, die du verwendet hast.
Energieausweis: für diesen Gebäudetyp nicht notwendig
Weitere Energiedaten
Heizungsart
Fußbodenheizung
Details
Objektbeschreibung
Sie lieben das Besondere? Dann sind Sie hier genau richtig! Nach einer Kernsanierung des alten Bahnhofes in Oberaula steht eine exklusive Wohnung im Obergeschoss zur Vermietung. Die Wohnung besteht aus Wohnzimmer, Schlafzimmer, Küche, und Bad mit Dusche. Beheizung über Wärmepumpe.
- VERMIETUNG NUR AN BERUFSTÄTIGE...
Weitere Informationen
Sonstiges
Meine Angebote sind freibleibend und unverbindlich. Diesem Exposé liegen die Angaben des Eigentümers zugrunde. Die Haftung für einfache Fahrlässigkeit wird ausgeschlossen. Irrtum und Zwischenvermietung bleiben ausdrücklich vorbehalten.
Ich freue mich auf Ihre...
Anbieter der Immobilie
Klaus Schmidt Immobilien
Breslauer Str. 15, 36272 Niederaula
Online-ID: 2nwx952
Finde Angebote wie dieses
Hier geht es zu unserem Impressum, den Allgemeinen Geschäftsbedingungen, den Hinweisen zum Datenschutz und nutzungsbasierter Online-Werbung.