
Cord Lindhorst GmbH
Frau Dagmar Ebling
+49 ···
Nr. anzeigenPreise & Kosten
Kaution
3585
Abschreibung/Anlage
Denkmalschutz-Afa
Warum sehe ich diese Anzeige? – Du siehst diese Anzeige basierend auf Ihrer Navigation auf unserer Website und den Suchkriterien, die du verwendet hast.
Lage
Das hier angebotene Reihenmittelhaus liegt in zentraler Lage von Delmenhorst, ca. 1 km vom Bahnhof entfernt.
Das Objekt befindet sich auf dem Nordwollegelände und ist somit sehr ruhig gelegen.
Es befinden sich sämtliche Einrichtungen zur Deckung des täglichen Bedarfs (Bäcker, Supermarkt, Apotheke, Banken etc.) in...
Die Wohnung
Kategorie
Loft
Bezug
sofort
Derzeitige Nutzung
frei
Energie & Heizung
Warum sehe ich diese Anzeige? – Du siehst diese Anzeige basierend auf Ihrer Navigation auf unserer Website und den Suchkriterien, die du verwendet hast.
Energieausweis: für diesen Gebäudetyp nicht notwendig
Weitere Energiedaten
Energieträger
Gas
Heizungsart
Etagenheizung
Details
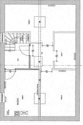
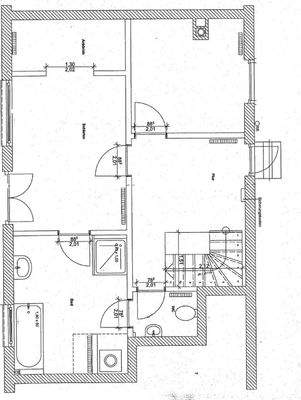
Objektbeschreibung
Diese um 1900 fertiggestellte Liegenschaft umfasst eine Loftwohnung mit ca. 105 m² Wohnfläche. Sie überzeugt durch ihren ganz besonderen Charme sowie ein großzügiges Platzangebot.
Im Erdgeschoss befinden sich neben einem Vollbad zwei großzügige Räume sowie ein begehbarer Kleiderschrank.
Das Obergeschoss bildet den...
Weitere Informationen
Sonstiges
Bemerkung:
Unsere Objektangaben basieren auf den uns erteilten Informationen.
Eine Haftung für die Richtigkeit und Vollständigkeit können wir deshalb nicht übernehmen.
Besichtigungstermine:
Besichtigungstermine können Sie gerne mit Frau Dagmar Ebling Tel: 04221-2890281
Wir freuen uns auf Ihren...
Anbieter der Immobilie
Cord Lindhorst GmbH
Oldenburger Str.62, 27753 Delmenhorst
Online-ID: 2nx2r53
Referenznummer: 226 (1/261)
Finde Angebote wie dieses
Hier geht es zu unserem Impressum, den Allgemeinen Geschäftsbedingungen, den Hinweisen zum Datenschutz und nutzungsbasierter Online-Werbung.