
Evernest GmbH
Markus Gleitz
+49 ···
Nr. anzeigenPreise & Kosten
Provision für Käufer
3.57 inkl. MwSt.
Bei Abschluss eines notariellen Kaufvertrages ist eine Käuferprovision vom Käufer in Höhe von 3.57 % inkl. MwSt. aus dem Kaufpreis fällig.
Lage
Der Ort Weddel liegt idyllisch zwischen Braunschweig und Wolfsburg und gehört zur Gemeinde Cremlingen im Landkreis Wolfenbüttel. Mit seiner hervorragenden Infrastruktur und der naturnahen Umgebung zählt Weddel zu den begehrten Wohnlagen im östlichen Speckgürtel Braunschweigs.
Die verkehrsgünstige Lage macht Weddel...
Das Haus
Baujahr
1978
Energie & Heizung
Warum sehe ich diese Anzeige? – Du siehst diese Anzeige basierend auf Ihrer Navigation auf unserer Website und den Suchkriterien, die du verwendet hast.
Energieausweistyp
Verbrauchsausweis
Gebäudetyp
Wohngebäude
Effizienzklasse
E
Endenergieverbrauch
134,70 kWh/(m²·a) - Warmwasser enthalten
Weitere Energiedaten
Energieträger
Gas
Details
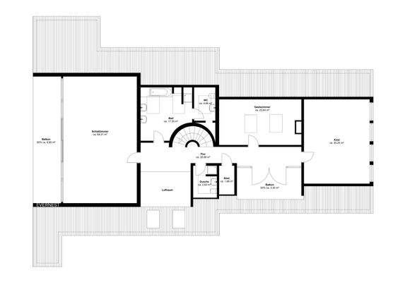
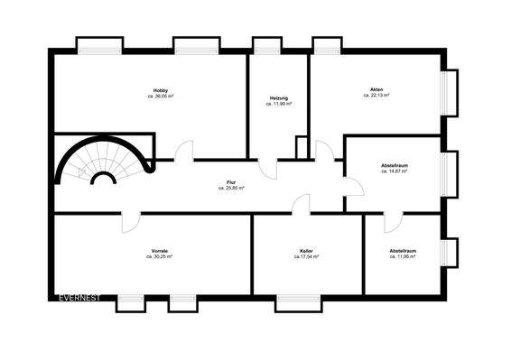
Objektbeschreibung
Dieses attraktive Wohn- und Geschäftshaus in Cremlingen-Weddel verbindet großzügigen Wohnkomfort mit einer nachhaltig vermieteten Gewerbeeinheit in begehrter Lage. Das massiv errichtete Objekt befindet sich auf einem weitläufigen Grundstück von ca. 1.333 m² und überzeugt durch seine moderne Ausstattung, den sehr gepflegten...
Ausstattung
* Doppelgarage
* Großes gepflegtes Grundstück
* Einbauküche
* Fußbodenheizung im Erdgeschoss und Bädern
* Gäste WC 2006 erneuert
* Masterbad 2008 erneuert
* Duschbad 2021 erneuert
* Dacheindeckung mit Dämmung 2002 (Schiefer)
* Alarmanlage für zusätzliche Sicherheit
* Gaszentralheizung Praxis...
Weitere Informationen
Stichworte
Garage vorhanden, Anzahl der Schlafzimmer: 4, Anzahl der Badezimmer: 2, Anzahl der separaten WCs: 1, Anzahl Balkone: 2, Anzahl Terrassen: 1, 2 Etagen
Anbieter der Immobilie
Online-ID: 2nx7856
Referenznummer: L-X4KG7JG
Finde Angebote wie dieses
Hier geht es zu unserem Impressum, den Allgemeinen Geschäftsbedingungen, den Hinweisen zum Datenschutz und nutzungsbasierter Online-Werbung.