
ohne-makler.net - Immobilien selbst vermarkten
Privat von Andreas Knapp
Kontaktiere den Anbieter schriftlich, es ist keine Telefonnummer hinterlegt.
Preise & Kosten
Provision für Käufer
provisionsfrei
Lage
Die alte Senffabrik liegt in einer ruhigen, dennoch zentralen Lage in Düsseldorf - nur wenige Minuten von der Königsallee, der Altstadt und der Rheinuferpromenade entfernt.
Das Viertel überzeugt durch seine perfekte Mischung aus urbaner Lebendigkeit und angenehmer Nachbarschaft. Einkaufsmöglichkeiten, Restaurants, Schulen...
Das Haus
Kategorie
Stadthaus
Baujahr
2019
Bezug
nach Absprache
Details
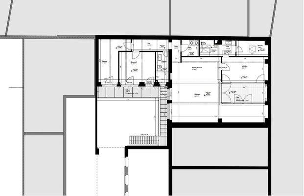
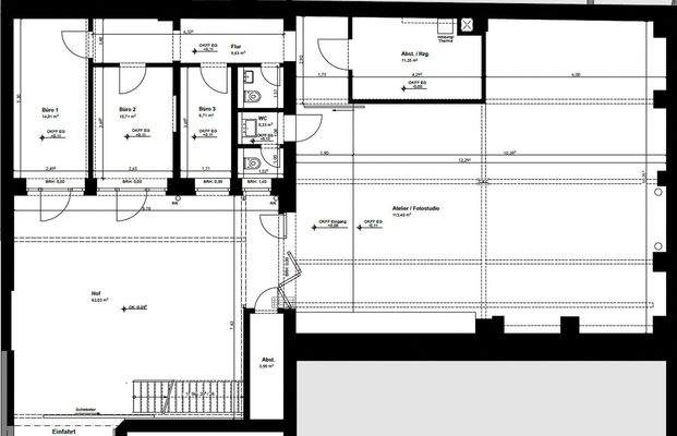
Objektbeschreibung
Ein Stück Düsseldorfer Industriegeschichte wurde neu zum Leben erweckt - in der alten Senffabrik trifft authentisches Loft-Gefühl auf architektonische Präzision und nachhaltige Zukunftsfähigkeit.
In der ehemaligen Senffabrik aus dem Jahr 1843 vereinen sich industrieller Charme und moderner Wohnkomfort zu einem...
Ausstattung
Balkon, Terrasse, Einbauküche, Gäste-WC, Sonstiges (s. Text)
Bemerkungen:
Komplettsanierung 2016-2019 (Technik, Leitungen, Dämmung, Elektrik)
.Moderne Heizungsanlage mit Warmwasserversorgung (2019)
.Fußbodenheizung mit Sichtestrich im Atelier
.Original Eichen-Vollholzparkett
.Klimaanlage
.Hochwertige...
Preisinformation
1 Stellplatz
Weitere Informationen
Sonstiges
Energieausweis nicht vorhanden
Makleranfragen nicht erwünscht. Nach § 7 UWG sind unaufgeforderte Kontaktaufnahmen durch Makler ohne ausdrückliche Einwilligung des Empfängers verboten!
ohne-makler (OM) ist weder Anbieter noch Vermittler der Immobilie. OM betreibt eine Plattform für...
Dokumente
Anbieter der Immobilie
ohne-makler.net - Immobilien selbst vermarkten
Humboldtstr. 25 A, 21509 Glinde
Privat von Andreas Knapp
Dein Ansprechpartner
Kontaktiere den Anbieter schriftlich, es ist keine Telefonnummer hinterlegt.
Online-ID: 2nxdb59
Referenznummer: 415902
Finde Angebote wie dieses
Hier geht es zu unserem Impressum, den Allgemeinen Geschäftsbedingungen, den Hinweisen zum Datenschutz und nutzungsbasierter Online-Werbung.