

K&S Immobilienberatung GmbH
Firma Ihr K&S Team
034 ···
Nr. anzeigenPreise & Kosten
Kaution
3.075,00
Provision für Mieter
Die Vergütung bei der Vermittlung dieser Immobilie trägt ausschließlich der Vermieter. inkl. MwSt.
Warum sehe ich diese Anzeige? – Du siehst diese Anzeige basierend auf Ihrer Navigation auf unserer Website und den Suchkriterien, die du verwendet hast.
Lage
Wolfen ist ein traditionsreicher Stadtteil der Stadt Bitterfeld-Wolfen im südlichen Sachsen-Anhalt und liegt verkehrsgünstig zwischen Halle (ca. 30 km) und Leipzig (ca. 45 km). Über die Bundesstraße 184 sowie die nahe gelegene Autobahn A9 besteht eine schnelle Anbindung an beide Städte. Ergänzt wird dies durch den...
Büro-/Praxisfläche
Kategorie
Bürofläche
Baujahr
2012
Bezug
nach Vereinbarung
Geschoss
Erdgeschoss
Energie & Heizung
Warum sehe ich diese Anzeige? – Du siehst diese Anzeige basierend auf Ihrer Navigation auf unserer Website und den Suchkriterien, die du verwendet hast.
Wärme
Strom
Energieausweistyp
Bedarfsausweis
Gebäudetyp
Nicht-Wohngebäude
Baujahr laut Energieausweis
2012
Wesentliche Energieträger
KWK_FOSSIL
Gültigkeit
bis 07.06.2031
Endenergiebedarf (Wärme)
181,80 kWh/(m²·a)
Endenergiebedarf (Strom)
11,30 kWh/(m²·a)
Details
Objektbeschreibung
Sie suchen eine repräsentative und flexibel nutzbare Gewerbefläche für Ihre Praxis oder Ihr Büro? Dann könnte dieses Angebot genau das Richtige für Sie sein.
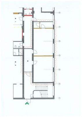
Die zur Vermietung stehende Einheit befindet sich im Erdgeschoss des gepflegten Carrees an der Dessauer Allee 50 in Wolfen. Auf einer Fläche von ca. 82 m², die...
Ausstattung
- Erdgeschosslage
- ca. 82 m², erweiterbar auf bis zu 100 m²
- helle und gut geschnittene Räume
- barrierefreier Zugang
- separate WC-Anlage
- flexible Raumaufteilung möglich
- vielseitige Nutzung (Büro, Dienstleistungen)
- gute Sichtbarkeit und zentrale Lage
-...
Weitere Informationen
Sonstiges
Die Angaben zu dieser Immobilie beruhen auf Aussagen und Unterlagen des Eigentümers. Der Makler übernimmt für die Richtigkeit dieser Angaben keine Haftung.
Bei den im Exposé dargestellten Grundrissen handelt es sich ausdrücklich um Grundrissskizzen, die lediglich dem Verständnis der Raumaufteilung dienen...
Anbieter der Immobilie

Online-ID: 2nxet59
Referenznummer: 11430
Finde Angebote wie dieses
Hier geht es zu unserem Impressum, den Allgemeinen Geschäftsbedingungen, den Hinweisen zum Datenschutz und nutzungsbasierter Online-Werbung.