

Martens & Kühl GmbH
Herr Felix Kühl
041 ···
Nr. anzeigenPreise & Kosten
Kaution
2.700,00
Provision für Mieter
provisionsfrei
Warum sehe ich diese Anzeige? – Du siehst diese Anzeige basierend auf Ihrer Navigation auf unserer Website und den Suchkriterien, die du verwendet hast.
Lage
Die angebotene Immobilie befindet sich mitten in Uetersen und zeichnet sich durch seine Nähe zum Stadtzentrum aus, das lediglich eine Gehminute entfernt ist. Zudem ist die Fläche direkt an der B431 gelegen.
Die nahegelegene Fußgängerzone bietet viele Geschäfte des täglichen Bedarfs, wie Supermärkte, Drogeriemärkte...
Die Ladenfläche
Kategorie
Laden
Baujahr
1900
Bezug
sofort
Erdgeschoss
Energie & Heizung
Warum sehe ich diese Anzeige? – Du siehst diese Anzeige basierend auf Ihrer Navigation auf unserer Website und den Suchkriterien, die du verwendet hast.
Wärme
Energieausweistyp
Bedarfsausweis
Gebäudetyp
Nicht-Wohngebäude
Baujahr laut Energieausweis
1900
Wesentliche Energieträger
GAS
Gültigkeit
10.12.2018 bis 09.12.2028
Endenergiebedarf (Wärme)
136,70 kWh/(m²·a)
Details
Ausstattung
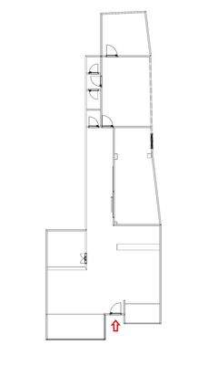
- Vielseitig nutzbare Gewerbefläche mitten in Uetersen
- Lange Schaufensterfront
- Großzügiger Eingangsbereich mit Empfangstresen
- Mehrere Räume in unterschiedlichen Größen
- 3 WCs für Kunden/Mitarbeiter
- Pantry-Küche
- Außenfläche (nach hinten raus)
- Flexible Aufteilung / Umbauten in Absprache mit...
Weitere Informationen
Sonstiges
Die Gesamtmiete versteht sich zzgl. Umsatzsteuer.
Weitere Immobilienangebote finden Sie auch unter: www.martens-kuehl.de
Stichworte
Nutzfläche: 150,00 m², Distanz zum Flughafen: 33.00, Distanz zum Hauptbahnhof: 4.10, Distanz zur Autobahn: 7.20, Distanz zu U-/S-Bahn: 11.20, Distanz zum Bus: 0.10...
Anbieter der Immobilie
Martens & Kühl GmbH
Großer Wulfhagen 25, 25436 Uetersen

Online-ID: 2nxk858
Referenznummer: 7428
Finde Angebote wie dieses
Hier geht es zu unserem Impressum, den Allgemeinen Geschäftsbedingungen, den Hinweisen zum Datenschutz und nutzungsbasierter Online-Werbung.