
IAD Immobilien Agentur Deutschland GmbH
Herr Lars Schleif
+49 ···
Nr. anzeigenPreise & Kosten
Provision für Käufer
3,57 % Käuferprovision inkl. 19 % MwSt. Die Provision errechnet sich aus dem Kaufpreis. Weitere Informationen siehe Provisionshinweis.
Lage
Die Immobilie befindet sich in einer sehr ruhigen Wohnlage von Hillerse, direkt am Feldrand. Die Sackgassenlage garantiert wenig Verkehr und ein hohes Maß an Ruhe und Sicherheit. Gleichzeitig sind die örtliche Infrastruktur, Einkaufsmöglichkeiten, Schulen und Verkehrsanbindungen gut erreichbar.
Das Haus
Kategorie
Einfamilienhaus
Baujahr
1975
Energie & Heizung
Warum sehe ich diese Anzeige? – Du siehst diese Anzeige basierend auf Ihrer Navigation auf unserer Website und den Suchkriterien, die du verwendet hast.
Energieausweistyp
Bedarfsausweis
Gebäudetyp
Wohngebäude
Baujahr laut Energieausweis
1975
Wesentliche Energieträger
Gas
Gültigkeit
bis 29.09.2035
Effizienzklasse
G
Endenergiebedarf
212,40 kWh/(m²·a)
Weitere Energiedaten
Energieträger
Gas
Details
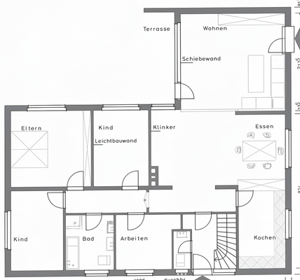
Objektbeschreibung
Zum Verkauf steht ein freistehendes Einfamilienhaus in begehrter Feldrandlage am Ende einer Sackgasse in Hillerse.
Das im Jahr 1975 errichtete Haus überzeugt durch seine massive Bauweise, eine vollverklinkerte Fassade sowie ein großzügiges Grundstück mit viel Privatsphäre.
Die Immobilie ist vollunterkellert und...
Ausstattung
Freistehendes Einfamilienhaus in ruhiger Sackgasse mit Feldrandlage
Massive Bauweise, vollverklinkert (BJ 1975)
Ca. 151 m² Wohnfläche, ca. 1.040 m² Grundstück
5 Zimmer, vollunterkellert (Pool/Schwimmbad im Keller vorbereitet)
Parkett- und Teppichböden, Einbauküche
1 Bad, Gäste-WC im EG, WC...
Preisinformation
1 Carportplatz
1 Stellplatz
1 Garagenstellplatz
Weitere Informationen
Provisionshinweis
3,57 % Käuferprovision inkl. 19 % MwSt. Die Provision errechnet sich aus dem Kaufpreis. Für ein Exposé und weitere Informationen zum Objekt sowie einen Besichtigungstermin füllen Sie bitte die nachfolgenden Angaben im Kontaktformular aus:- vollständiger Name/Anschrift- E-Mail-Adresse-...
Anbieter der Immobilie
IAD Immobilien Agentur Deutschland GmbH
Untere Bühlstraße 5, 91338 Igensdorf
Online-ID: 2nxle5b
Referenznummer: H-LS0111/1
Finde Angebote wie dieses
Hier geht es zu unserem Impressum, den Allgemeinen Geschäftsbedingungen, den Hinweisen zum Datenschutz und nutzungsbasierter Online-Werbung.