
Sparkasse Ingolstadt Eichstätt i.V.d. Sparkassen-Immobilien-Vermittlungs GmbH
Frau Kornelia Schenk
084 ···
Nr. anzeigenPreise & Kosten
Provision für Käufer
provisionsfrei
Lage
Die Bischofs- und Universitätsstadt Eichstätt mit ca. 14.000 Einwohnern liegt im Naturpark Altmühltal und ist zugleich Große Kreisstadt sowie Sitz des Landkreises Eichstätt. Sie befindet sich geographisch in der Mitte Bayerns auf halber Strecke zwischen München und Nürnberg und ist sowohl über die Autobahn A 9 als auch mit...
Das Objekt
Baujahr
1997
Bezug
sofort
Energie & Heizung
Warum sehe ich diese Anzeige? – Du siehst diese Anzeige basierend auf Ihrer Navigation auf unserer Website und den Suchkriterien, die du verwendet hast.
Energieausweistyp
Verbrauchsausweis
Gebäudetyp
Wohngebäude
Baujahr laut Energieausweis
1997
Wesentliche Energieträger
Gas
Gültigkeit
29.11.2019 bis 28.11.2029
Effizienzklasse
C
Endenergieverbrauch
89,70 kWh/(m²·a) - Warmwasser enthalten
Weitere Energiedaten
Energieträger
Gas
Heizungsart
Zentralheizung
Details
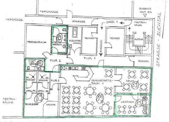
Objektbeschreibung
Vielseitige Räume im Untergeschoss eines Wohn- und Geschäftshauses in Eichstätt. Durch den Lichthof ist ausreichend Tageslicht vorhanden. Durch jeweils 2 getrennte Duschräume und Toiletten sowie die Anschlussmöglichkeiten für eine Küchenzeile ist eine vielseitige Nutzung vorstellbar.
Bei Interesse wäre es ggf. auch...
Weitere Informationen
Stichworte
Gesamtfläche: 177,00 m², Bundesland: Bayern
Anbieter der Immobilie
Sparkasse Ingolstadt Eichstätt i.V.d. Sparkassen-Immobilien-Vermittlungs GmbH
Franziskanerstr. 9, 85049 Ingolstadt
Online-ID: 2nxm553
Referenznummer: 1/20/167-167/011521
Finde Angebote wie dieses
Hier geht es zu unserem Impressum, den Allgemeinen Geschäftsbedingungen, den Hinweisen zum Datenschutz und nutzungsbasierter Online-Werbung.