
Schwabenhaus Rosenheim - Niklas Schumacher - Handelsvertretung für die Schwabenhaus GmbH
Herr Niklas Schumacher
+49 ···
Nr. anzeigenPreise & Kosten
Provision für Käufer
provisionsfrei
Lage
Kirchseeon - Wohnen im Grünen mit bester Anbindung
Kirchseeon, eine charmante Gemeinde östlich von München, bietet die perfekte Mischung aus naturnahem Wohnen und hervorragender Infrastruktur. Dank der direkten Anbindung an die S-Bahn-Linie S4 erreicht man die Münchner Innenstadt in nur ca. 25 Minuten. Die nahegelegene...
Das Haus
Kategorie
Doppelhaushälfte
Energie & Heizung
Warum sehe ich diese Anzeige? – Du siehst diese Anzeige basierend auf Ihrer Navigation auf unserer Website und den Suchkriterien, die du verwendet hast.
Weitere Energiedaten
Heizungsart
Fußbodenheizung
Details
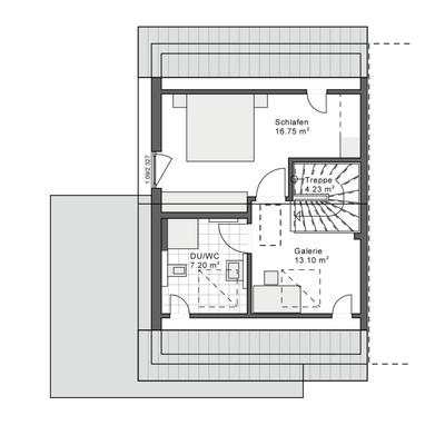
Objektbeschreibung
WELCOME HOME. WELCOME TO YOUR FUTURE.
Dein Zuhause ist mehr als vier Wände - es ist dein Rückzugsort, dein Investment, dein neuer Lebensabschnitt.
White&Black macht Wohneigentum bezahlbar, modern und flexibel.
Jetzt ist der richtige Moment, um anzukommen.
Ausstattung
THINK BLACK - All in.
- Schlüsselfertig & sofort bezugsbereit - ohne zusätzlichen Aufwand
- Kompletter Innenausbau - keine Handwerkersuche, kein Planungsstress
- Durchdachte Raumaufteilung - moderne Wohnkonzepte für jede Lebensphase
- Innovative Haustechnik - zukunftssicheres Wohnen mit höchster...
Weitere Informationen
Sonstiges
Das Haus ist projektiert inkl. Grundstück. Das Grundstück wird in Kommission angeboten bzw. direkt von Dritten verkauft. Daher kann der genannte Preis aufgrund aktueller Marktsituationen schwanken.
Die Bauabwicklung kann kurzfristig nach Grundstückserwerb begonnen werden. Bilder zeigen möglicherweise...
Anbieter der Immobilie
Schwabenhaus Rosenheim - Niklas Schumacher - Handelsvertretung für die Schwabenhaus GmbH
Hauptstraße 4d, 83339 Chieming

Online-ID: 2nxnq53
Referenznummer: WB-25408-Kirchseeon
Finde Angebote wie dieses
Hier geht es zu unserem Impressum, den Allgemeinen Geschäftsbedingungen, den Hinweisen zum Datenschutz und nutzungsbasierter Online-Werbung.