Mieten oder Eigentum? Hier beginnt Ihr Weg ins Eigenheim!
Warum weiter Miete zahlen, wenn der Weg ins Eigentum nur eine Entscheidung entfernt ist? Unser flexibles Wohnmodell bietet dir die Chance, auch ohne Eigenkapital den Traum vom eigenen Zuhause zu verwirklichen.
Du bist unsicher, ob du die Voraussetzungen erfüllst? - Wir prüfen gemeinsam, was möglich ist.
Du brauchst Orientierung bei Finanzierung und Ablauf? - Wir begleiten dich Schritt für Schritt.
Du fragst dich, ob dieses Modell wirklich zu dir passt? - Wir zeigen dir, wie es funktionieren kann..
Dein Weg ins Eigenheim beginnt heute - mit White&Black.
Merkmale
380 m² Grundstück
Gäste-WC
THINK AHEAD - Fast Vollendet Plus
Rohbau, Dach, Fassade, Fenster & Türen - alles fix und fertig. Ihr Haus ist von außen komplett abgeschlossen und wettergeschützt.
Zusätzlicher Komfort durch vorbereitete Innenflächen: Putz, Estrich und Trockenbau bereits erledigt - Sie starten im Innenausbau auf fertiger Basis.
Ausstattung nach Wunsch: Böden, Bäder, Türen und Oberflächen gestalten Sie selbst - mit maximaler Freiheit bei Stil und Umsetzung.
Sicherheit & Transparenz: Einheitliche Festpreise geben Ihnen volle Kostenkontrolle - ohne böse Überraschungen.
Fast Vollendet Plus ist der ideale Mix aus vorbereiteter Bauleistung und persönlicher Gestaltungsfreiheit - für alle, die mit Substanz starten und Raum für Individualität schätzen.
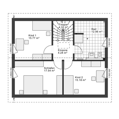
Grundrisse
Grundrisse
1 / 3
Realisiere Dein Projekt
Bausubstanz und Energie
Möchtest du Details zum Energieverbrauch?
Zustand der ImmobilieNeubau, Erstbezug
HeizungsartFußbodenheizung
Mietkosten
Kaltmiete
16,46 €/m²
2.288 €
Kaution
keine Angabe
Weitere Preisinformationen
Nettokaltmiete: 2.288,00 EUR
Lage
Merzenich (52399)
Der Anbieter hat die genaue Adresse nicht freigegeben
.
Weitere Informationen
Sonstiges
Hinweise & Terminvereinbarung
Bonität vorausgesetzt. Auch ohne Eigenkapital kann eine Umsetzung geprüft werden. Bestehende Verbindlichkeiten oder Altschulden stellen nicht zwingend ein Hindernis dar.
Der angegebene Preis versteht sich inkl. Grundstückskosten sowie zzgl. weiterer Baunebenkosten. Abbildungen, Grundrisse und Flächenangaben dienen der Veranschaulichung und können Sonderausstattungen wie Keller, Carport, Garage oder Anbauteile enthalten. Flächenangaben gemäß DIN 277. Alle Angaben ohne Gewähr.
?? Fragen zum Ablauf, Haustypen oder den verfügbaren Grundstücken? Schreiben Sie mir einfach bei WhatsApp +491785605352 - oder rufen Sie direkt an!
?? Termine bitte ausschließlich telefonisch anfragen. Im Gespräch klären wir gemeinsam Ihre Voraussetzungen, führen eine erste Bonitätsprüfung durch und besprechen die nächsten Schritte.
??Hinweis: Anfragen werden nach Eingangsdatum bearbeitet und nur bei vollständigen Kontaktdaten (Vor- und Nachname, Telefonnummer, E-Mail etc.) beantwortet.
Stichworte
Anzahl der Schlafzimmer: 3, Anzahl der Badezimmer: 1, Anzahl der separaten WCs: 1