

Peter Peters Immobilien GmbH &Co.KG
Herr Peter Peters
046 ···
Nr. anzeigenPreise & Kosten
Provision für Käufer
3,57 % inkl. MwSt.
Lage
Wenningstedt liegt südlich von Kampen und nördlich von Westerland am Rande einer Dünenlandschaft auf dem Roten Kliff. Unterhalb des Kliffs erstreckt sich ein Sandstrand, der insbesondere im Sommer als bewachter Badestrand die Haupt-Touristenattraktion ist. Das Herzstück von Wenningstedt ist der idyllische Dorfteich mit seiner...
Die Immobilie
Zu diesem Angebot wurden vom Anbieter keine weiteren Daten hinterlegt. Für weitere Informationen bitte den Anbieter kontaktieren.
Nach Informationen fragenDetails
Objektbeschreibung
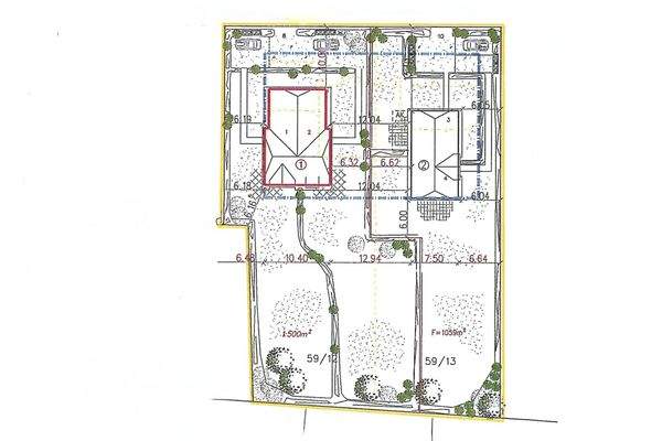
In zurückgezogener Lage von Wenningstedt, bietet sich eine seltene Gelegenheit zur Realisierung eines hochwertigen Neubauprojekts. Das projektierte Baugrundstück umfasst eine Fläche von ca. 1.500 m² und verfügt über eine Grundflächenzahl (GRZ) von 0,10, was eine lockere, hochwertige Bebauung im Einklang mit der umliegenden...
Ausstattung
Das geplante Raumkonzept sieht zwei großzügige Schlafzimmer mit jeweils einem Bad en suite vor und bietet damit ein hohes Maß an Privatsphäre. Ergänzt wird das Wohnangebot durch einen großzügigen Wellnessbereich im Untergeschoss, der Raum für Entspannung und Rückzug schafft und dem Neubau eine zusätzliche Exklusivität...
Weitere Informationen
Stichworte
GRZ: 0,10, GFZ: 0,19, Bundesland: Schleswig-Holstein
Anbieter der Immobilie

Online-ID: 2nxz35b
Referenznummer: 2223
Finde Angebote wie dieses
Hier geht es zu unserem Impressum, den Allgemeinen Geschäftsbedingungen, den Hinweisen zum Datenschutz und nutzungsbasierter Online-Werbung.